Планировка
При составлении проекта любого частного дома нужно следовать определённым правилам, главное из которых – внутреннее пространство необходимо разделить на две части – жилую и хозяйственную.

К жилой зоне относятся: гостиная, спальни, коридоры, санузлы, кабинет, гардеробные, столовая. Помещения хозяйственной зоны – это кухня, котельная, прачечная, кладовая, мастерская, гараж.

Как видно на фото частного дома 100 кв. м, его планировка может быть самой простой. Но в любом случае она обязана соответствовать всем желаниям владельцев.

Специфика проекта зависит от поставленных задач. Основная цель – внимательно и тщательно продумать каждый квадратный метр площади и постараться учесть все тонкости, которые могут оказать влияние на окончательный вариант.

Опытные дизайнеры дают следующие рекомендации, к которым стоит присмотреться:
- Если вы хотите увеличить полезную площадь жилья, то выберите проект дома с мансардой 100 кв. м.
- Чтобы сэкономить внутреннее пространство, сделайте выбор в пользу совмещённых санузлов и объединения кухни с гостиной.
- Размеры коридора и прихожей должны соответствовать размерам жилых комнат.
- Желательно, чтобы входа в дом было два, и находились они с разных сторон.







Почему одноэтажные дома до 100 кв. м так популярны
Востребованность одноэтажных жилых строений небольшой площади объясняется их важными преимуществами. Они подходят для строительства на сложных участках. А именно:
на участках размером в 3-4 сотки;
на вытянутых узких земельных наделах;
на участках со слабым грунтом или высоким залеганием грунтовых вод.
Особенность маленьких участков не только в том, что на них нельзя возвести большой коттедж, а еще и в том, что постройки соседских домов расположены очень близко к разделительной меже, и, соответственно друг к другу. Чтобы сохранить интимность собственного домовладения, и не стеснять соседей, лучше строить на таких участках одноэтажные жилые здания.
Если же участок характеризуется сложными условиями грунта, то на нем вообще может быть не возможно построить двухэтажное строение из-за большого давления на фундамент. Зато одноэтажные дома, особенно из облегченных стройматериалов, можно возводить практически в любых условиях.
По размеру компактные одноэтажные коттеджи подходят для постоянного проживания небольшой семьи или для сезонного загородного отдыха. Их основные плюсы заключаются в экономичном отопление и простом обслуживании. Кроме того, маленький одноэтажный дом можно построить очень быстро и при минимальных финансовых вложениях.

Пример одноэтажного дома до 100 кв м для маленького участкаИсточник 1okunevo.ru
План одноэтажного дома: достоинства и недостатки
Строительные работы по возведению одноэтажного здания отличаются массой преимуществ, ведь построить дом с одним этажом гораздо быстрее и легче, чем с двумя и более.
Этот тип застройки открывает широкие возможности для разработки дизайна, его исполнения, а также обеспечивает надежность и безопасность готового здания. Но одноэтажные коттеджи не смогут решить проблему с застройкой загородных участков, владельцы которых имеют большие семьи
В этом случае стоит обратить внимание на двух- и трехэтажные сооружения
Вариант планировки одноэтажного дома с маленькой площадью
Одноэтажные постройки популярны не только благодаря небольшим габаритам и низким затратам на строительство. Они отлично вписываются в природный ландшафт. Тем не менее над распределением внутренних площадей следует задуматься, так как здание в итоге должно полностью отвечать потребностям всех жильцов. Для этого стоит ознакомиться с фото, планами одноэтажных домов, а также их характеристиками. Это позволит вам создать более полную картину понимания того, как разрабатываются проекты зданий.
Достоинства проектов с одним этажом
Как и любой тип постройки, одноэтажное сооружение обладает и преимуществами, и недостатками. Оптимальным считается тот вариант, который располагает большим количеством достоинств, чем минусов.
Достоинства проектов с малой этажностью:
фундаментное основание является важнейшей частью дома. При этом стоимость его строительства очень высока в сравнении с расценками на оставшиеся виды работ. В большинстве случаев одноэтажные постройки имеют упрощенный вариант фундамента. Такое основание не рассчитано выдерживать вес нескольких этажей, поэтому может иметь простое исполнение и облегченную конструкцию. Что, в свою очередь, не налагает ограничений в отношении типа грунта на территории, отведенной под застройку;
Одноэтажный дом со спальными комнатами в мансарде
- при строительстве стен можно существенно сэкономить, поскольку их конструкции не требуют дополнительного усиления, так как отсутствует второй этаж. Выбор строительных материалов в этом случае также практически ничем не ограничивается;
- инженерия в одноэтажных зданиях очень проста. Нет необходимости выполнять сложную разводку коммуникаций, системы отопления и пр. с расчетом на особые эксплуатационные условия дома. Как это бывает, например, с домами, где есть такой архитектурный элемент, как второй свет или же имеется много этажей. Монтажные работы максимально упрощены и обходятся очень дешево;
- благодаря простой конструкции строительство дома не требует больших затрат, а все работы производятся в кратчайшие сроки;
3D-проект одноэтажного дома с мансардой и гаражом
проекты с одним этажом не включают в себя наличие лестничной конструкции, за исключением планировок с мансардой. Это позволяет отказаться от возведения дорогостоящей и сложной лестницы, более рационально распорядившись внутренними жилыми площадями.
Недостатки одноэтажных зданий и особенности организации пространства
Одноэтажные постройки имеют и недостатки, которых не так уж и много:
сооружения с большой площадью и одним этажом создают значительные трудности на этапе проектирования. В таких условиях при составлении планировки нужно следить за тем, чтобы проходных комнат было как можно меньше. Особенно это требование касается комнат отдыха – спален, гостевых и детских. От этого будет зависеть комфорт нахождения в них;
Планировка одноэтажного дома площадью 150 кв м, рассчитанного на проживание большой семьи
- постройки с одним этажом и большими габаритами требуют значительных затрат на этапе организации крыши. Впоследствии кровля с такими габаритами будет чаще нуждаться в проведении планового ремонта и обновления, который станет причиной новых затрат;
- здания с маленькими габаритами ограничивают размеры внутренних помещений. На этапе проектирования придется создавать такую планировку, которая будет одновременно отвечать потребностям всех жильцов и соответствовать нормативам строительства и санитарии.
Терраса с зоной отдыха, пристроенная к одноэтажному дому
Проекты домов из газоблоков и пеноблоков до 100 кв. м
Площадь в 100 м2 считается наиболее оптимальным вариантом для строительства частного дома. Созданного пространства вполне достаточно для не очень большой семьи, каждый член которой будет иметь свою комнату и возможность уединиться.
Проектирование газобетонного дома может быть типовым, индивидуальным или с доработками (такой вариант совмещает преимущества первых двух, но исключает их недостатки).
Типовые
Любой типовой проект газобетонного (или любого другого) дома должен, в первую очередь, быть адаптированным под конкретный регион, в котором осуществляется строительство. Так, дом для строительства в Москве будет существенно отличаться от того, который будут возводить в Екатеринбурге или Сочи.

Разработчики учитывают такие факторы:
- Свойства грунта на участке, где планируется строить.
- Климатические условия в регионе.
- Отдельные пожелания заказчика касательно используемых строительных материалов.
Типовые проекты можно отыскать в каталогах, в сети – обычно они стоят намного дешевле индивидуальных, предлагают наиболее оптимальное решение в универсальном формате, с выгодной планировкой, эффективным использованием каждого квадратного метра, учетом наиболее распространенных пожеланий и потребностей заказчиков.

С доработкой
Такой вариант предполагает взятие за основу типового проекта газобетонного дома площадью до 100 кв. м, но с внесением по необходимости корректировок. Изменения могут быть масштабными и не очень, но подобное решение предполагает наибольшую эффективность – заказчику всегда проще выбрать уже готовый проект и кое-что в него добавить, чем делать с нуля то, что будущие жильцы не всегда четко могут представить.
Как правило, незначительные изменения реализуются бесплатно, более значительное – за отдельную доплату, сумма которой обсуждается сразу.
Индивидуальные
Проектирование в индивидуальном формате предполагает создание полностью уникального проекта будущего дома к нуля, который полностью учитывает все пожелания заказчика. В таком случае здание может иметь какую угодно конфигурацию, форму, планировку, отделку и т.д. Ограничений нет практически никаких, кроме реальности и разумных границ.

Возможности для создания индивидуального проекта:
- Предоставление клиентом или создание с проектировщиком первоначального наброска, эскиза, который потом обрастает деталями.
- Создание примерной карты будущей планировки, обработка ее специалистом с учетом требований и нормативов.
- Предоставление фото объектов, которые понравились и подробное объяснение профессионалу, что и для каких целей должно получиться в итоге.
Далее оформляется договор на создание индивидуального проекта из газобетона площадью 100 квадратных метров. Над заказом работают конструкторы, архитекторы, инженеры и проектировщики. Стоит такой вариант проектирования дороже всего и окончательная сумма зависит от конкретных пожеланий и объемов работ.

Созданный проект включает:
- Чертежи, необходимые для строительства дома.
- Технические данные касательно конструкций и узлов здания – начиная фундаментом и заканчивая кровлей.
- Полный перечень строительных материалов и их объемов, которые будут нужны для реализации проекта.
Имея на руках документацию, заказчик может начинать строить газобетонный дом самостоятельно или с привлечением строительной компании.
Заказать и получить проект сегодня можно без посещения офиса компании – общение в режиме онлайн и доставка всех документов курьерскими компаниями решают проблему.

В каком стиле можно создать фасад одноэтажного коттеджа: фото с комментариями

Декоративную штукатурку можно применять для отделки деревянных, кирпичных и каркасных домов
С помощью этого материала удаляют мелкие дефекты, неровности. Комбинация с плиткой обеспечивает дополнительную защиту здания в сложных местах (цоколь, крыльцо и входная группа, сопряжение трубы с кровлей).

Колонны подчеркивают солидность классического стиля

Элементы отделки «кантри» видны не только на фасаде, но и в других частях проекта

Деревянная облицовка

Хорошо оснащенный современный бассейн создан в виде природного открытого водоема

Кирпич и камень – надежность, долговечность, эксклюзивный внешний вид
Планировка одноэтажного дома
Стандартная планировка одноэтажного дома до 100 м2, включает в себя следующие помещения:
- прихожая или тамбур – является обязательным помещением, поскольку защищает от проникновения в дом холода во время открытия дверей;
- детская комната – она одновременно может быть как местом для сна и игр, так и местом для выполнения уроков, для этого нужно только установить необходимую мебель;
- гостиная – это место, где ежедневно будут собираться все члены семьи, поэтому представленная комната должна иметь довольно большие размеры, около 20 кв. м, и качественное освещение;
- котельная – представленное помещение необходимо в тех случаях, когда отопление дома в 100 м2, осуществляется благодаря работе газового, электрического или древесного котла;
- спальные комнаты – для родителей и детей (желательно, чтобы у каждого ребенка была собственная комната, в особенности, если дети разных полов);
- санузел – ванную и унитаз можно разместить как в одной комнате, так и раздельно.
Площадь каждого из помещений и их расположение могут разниться в зависимости от требования жильцов
Но особое внимание нужно уделить тому, чтобы спальные комнаты не размещались на проходе и содержали в себе такое количество осветительных приборов, чтобы в помещении было комфортно находиться
Читайте здесь! Дом 120 кв. м. — примеры идеальной планировки. Современные проекты частных домов из разных материалов (125 фото новинок)
Вариации готовых проектов
Небольшие дома до 100 квадратных метров из газобетона могут предполагать самые разные варианты планировки, этажности, дополнительных элементов и т.д. Поэтому прежде, чем приступать к выбору проекта, необходимо определиться с основными особенностями.
Варианты проектов домов из газобетона в 100 кв.м:
- Одноэтажные здания – небольшие дома для семьи из 3-4 человек.
- Двухэтажные строения – с хорошо продуманной планировкой, оригинальным внешним видом, предоставляют максимум жилого пространства на небольшой территории.
- С мансардой – чаще всего такие дома делают в современных стилях, есть зона отдыха на улице (террасы бывают открытыми и закрытыми).
- С гаражом – функционально и комфортно, когда гараж в виде пристройки, тем не менее, сразу выступает частью жилья и строится одновременно с основным зданием.
- С цоколем, подвалом – тут часто размещают различные подсобные помещения (прачечная, бойлерная, котельная, тренажерный зал, кладовая, винный погреб и т.д.), обустраивают дополнительные комнаты.
Основное преимущество уже готовых проектов – то, что они основываются на опыте и знаниях архитекторов и проектировщиков, предлагая наиболее выгодное и рациональное решение.

Стили
Жилье может быть каким угодно по стилю – тут все зависит от личных предпочтений жильцов. Чаще всего дома из газобетона строят в классическом стиле, также популярны модерн, минимализм, шале, хай-тек. Нередко газобетон в конструкции сочетают с монолитным бетоном, стеклом, деревом. Форма кровли может быт прямоугольной, треугольной, ровной.
План дома
Планировка домов площадью в 100 квадратных метров обычно типична. Если строится жилье для среднестатистической семьи, то желательно исключать оригинальные и необычные решения, которые могут сказаться на комфорте проживания людей.

Основные составляющие проектов:
- 2-3 компактные спальные комнаты (с отдельными санузлами или одним общим)
- Просторная гостиная, где могут собираться все члены семьи
- Кухня, объединенная с большой столовой
- Небольшой холл, коридор
- Ванная комната, совмещенная с санузлом
- 1-2 небольших технических помещений
- Крытая (чаще всего застекленная) терраса
- Гараж
В зависимости от конкретных пожеланий могут быть включены в проект кабинет, комната для гостей, дополнительные санузлы, тренажерный зал и т.д. Бывает, что за отсутствием необходимости в проект не включают гараж, дополнительные спальни, террасу и т.д.
Одноэтажный дом площадью 100 кв. м. с гаражом
Если у вас есть личный автотранспорт, то вам ещё на этапе разработке плана основного сооружения следует продумать необходимость гаража. Гараж – это отличное решение, которое позволит при небольших затратах площади организовать крытое парковочное место для одного автомобиля. Кроме того, тут можно хранить все ненужные вещи, которые вы не хотите выбрасывать, но и места для них в доме найти не можете. Наиболее оптимальное решение создавать гараж в качестве пристройки к дому. Это сократит необходимое количество времени на строительные работы, а также уменьшит затраты на приобретение всех необходимых расходных материалов. В интернете сегодня можно найти уже готовые схемы и чертежи, реализовать которые можно будет без особых усилий в условиях вашего участка.
Готовый одноэтажный дом с гаражом
ПРОЕКТ «СЕМЕЙНЫЙ»
Это достаточно простой и компактный дом, который отлично подойдет даже для большой семьи – внутреннее пространство организовано так, что всем будет максимально комфортно:
- в доме четко выделены две зоны, ночная и дневная, поэтому гости не будут вторгаться в личное пространство жильцов;
- в трех спальнях достаточно места для размещения 3-6 жильцов;
- один из санузлов расположен близко ко всем трем спальням;
- большая гостиная с камином вместит всех многочисленных домочадцев и гостей, а на террасе, куда можно попасть прямиком из гостиной, можно будет устраивать вечеринки или семейные посиделки;
- кухня примыкает к гостиной, но при желании ее можно изолировать;
- в дневной зоне есть еще один санузел с прачечной;
- общая площадь дома – 98,6 кв.м.
Советы относительно одноэтажных домов из газоблока
Часто человек, встретив объявление «дома из газоблоков под ключ» и увидев, что стоимость невелика, радуется и считает, что выход найден. Но это не всегда так, особенно в случаях, если для возведения таких домов используется некачественный материал.
В большинстве случаев такие фирмы изготавливают газобетонные блоки сами, не соблюдая технологию производства. Материал получается не соответствующий требованиям, предъявляемых к газобетону, а зачастую даже вредный для здоровья.
Кустарные условия производства снижают себестоимость материала, но эта мнимая экономия может вылиться в дорогостоящий ремонт.
Одноэтажный дом – выбор современного человека
Жизнь за городом привлекает все больше и больше людей. Большой мегаполис, разумеется, имеет массу преимуществ, предлагает огромное количество мест для развлечений и активного отдыха, но при этом не способен дарить обитателям тишину и покой хоть временами. Плохая экология, пробки и шумные соседи за стенкой – это то, что заставляет людей делать выбор в пользу частного дома. Многие из нас думают, что построить коттедж сегодня по карману далеко не каждому, и поэтому гораздо дешевле приобрести квартиру в одной из многочисленных высоток. Но, как показывает практика, если для возведения дома будет подобран или разработан действительно удачный проект, что позволит максимально точно рассчитать и определить сроки и количество необходимых материалов, то итоговая стоимость работ будет не сильно отличаться от затрат на приобретение квартиры от застройщика.
План просторного одноэтажного дома на несколько комнат
Но при всем этом вы получите массу преимуществ, так как одноэтажный дом отличается такими положительными характеристиками, как:
- просторность. Вы сами можете определить, какую площадь своего участка выделить под застройку. В доме площадью 80-100 кв. метров можно оборудовать три больших комнаты, ещё и оставив место под создание дополнительных помещений (кухни, санузлов и ванной комнаты, кладовой и т.д.).
- оригинальность. Так как вы отдаёте предпочтение самостоятельному строительству, а не покупке уже готового сооружения, то на этапе расчета планировки вы можете воплотить в жизнь свои даже самые смелые решения и идеи.

- безопасность. В отличие от двух или трехэтажных капитальных строений, одноэтажные дома не нуждаются в создании лестницы. Это особенно актуально в том случае, когда вы планируете переезжать с маленькими детьми или пожилыми родственниками, которым наличие лестницы может создать определённый дискомфорт и неудобство. Кроме того, помните, что в случае неправильного монтажа или ненадёжной фиксации этот конструктивный элемент проекта может стать причиной повышенного уровня травматизма.
- доступность. Как уже было сказано, если на этапе проектировки все работы будут проведены качественно, ответственно и профессионально, вы исключите возможность покупки лишнего и не нужного расходного материала, чем сможете существенно снизить себестоимость всего строения.

Конечно же, также стоит отметить и практичность таких зданий. Благодаря наличию только одного этажа нагрузка на фундамент по всему периметру будет равномерной. Поэтому если вы решите выбрать в качестве основного материала для строительства древесину, то в таком случае сооружению понадобится гораздо меньше времени на усадку.
Преимущества двухэтажных домов над одноэтажными
1. Экономия на фундаменте
Крепкий фундамент, который бы выдерживал вес всех стен и перекрытий, и не разрушался со временем, важен для любого здания. Если рассматривать строительство 1-этажного дома площадью 100 кв. м., то для него и фундамент нужен такой же площади. Но если выбрать проект двухэтажного дома с той же площадью (100 кв. м), то у него площадь каждого этажа будет составлять по 50 кв. м, а соответственно и фундамента.
В 2 раза меньшая площадь фундамента позволит сэкономить в 2 раза на стройматериалах
Правда важно учесть следующий нюанс – каждый метр «уменьшенного» фундамента должен выдерживать двойную нагрузку уже от двух этажей, а не от одного
Хотя строители отмечают, что «двойная нагрузка» – это только в теории, в реальности же цифра ближе к 1,5 раз, за счет того, что перекрытия и крыша будут вдвое меньшей площади, и, соответственно, во столько же раз меньше будут весить. К тому же, второй этаж можно построить не из камня, а из дерева или панелей, по каркасной технологии – это еще один вариант уменьшения веса и стоимости здания.
Кстати, как мы уже писали в нашем блоге, крышу не обязательно делать традиционной двухскатной. Если речь идет о бюджетном доме, то вполне подойдет и односкатная или плоская кровля. Таким образом, снижается вес стандартной стропильной системы, сюда можно приплюсовать уменьшение веса кровельного покрытия, и его стоимости – как на сам материал, так и на проведение работ по его укладке.
2. Экономия на отоплении
Анализируя другие плюсы двухэтажных домов, стоит отметить, что их легче отапливать зимой. Если проводить аналогию с предыдущим примером, коттедж с 2-мя этажами по 50 кв. м. прогреется быстрее, чем одноэтажный площадью 100 кв. м.
Весь секрет в физике: в 2-х этажном доме достаточно нагреть первый этаж, а теплый воздух сам будет подниматься на второй. Главное – хорошо утеплить чердак и заизолировать все места в конструкции, через которые тепло может уходить на улицу.
Так как отопление – это существенная часть расходов любого домовладельца, то можно догадаться, какую экономию принесет отсутствие необходимости отопления дома относительно большой горизонтальной площади. Ведь тепло, по большому счету, не распространяется по горизонтальной плоскости. Теплый воздух обычно стремится уходить вверх, к потолку, и нагревает его. Если чердачное перекрытие плохо утеплено, то тепло уходит через крышу на улицу.
В случае с двухэтажным домом, особенно с деревянными перекрытиями (с бетонными — эффект меньше), теплый воздух с первого этажа нагревает пол второго этажа, и в результате, хорошо его утепляет. Экономия налицо, особенно если учесть, во сколько раз деревянные перекрытия легче бетонных, и насколько малую нагрузку они оказывают на фундамент.
3. Виды из окна
Об этом мало кто думает, перед началом строительства. Тем не менее, это весьма приятный «бонус» при выборе двухэтажного проекта.
Очень хорошо, если дом стоит на возвышенности, а соседние постройки находятся на расстоянии – тогда можно каждый день любоваться природными пейзажами, встречать рассветы и закаты на свежем воздухе. Кстати, еще один плюс 2-х этажных коттеджей — возможность обустроить балкон, а под ним террасу.
Теперь, разберемся с минусами двухэтажных коттеджей. Насколько они значительны?
Проекты одноэтажных каркасных домов
В этом разделе вы найдете проекты одноэтажных каркасных домов для строительства своими руками с нуля до чистовой отделки. Наши проекты адаптированы под самостоятельное строительство непрофессионалами, и под размеры материалов из магазина!
Покупая у нас проект каркасного дома, вы получаете не просто набор документов и сложных чертежей, вы получаете подробную пошаговую инструкцию по технологии сборки и строительству, а также устройству инженерных коммуникаций (прокладке и подключению электрики, сантехники и вентиляции).
Чтобы строить по нашим проектам необязательно быть строителем, достаточно уметь держать в руках молоток!
Проекты каркасных домов до 50 кв.м.
Проект КД-14 Одноэтажный каркасный дом 5х6 30м 2 : высота потолков 2,4м. Цена дома 235 тыс.руб. — в цену входит утепление 150мм и отделка. Цена проекта 8 400 руб.

Проект КД-16 Одноэтажный каркасный дом 4х5 20м 2 : высота потолков 2,3м/2,5м. Цена дома 160 тыс.руб. — в цену входит утепление 100мм и отделка. Цена проекта 5 000 руб.

Проект КД-56 Каркасный дом 5х6м, 30м 2 : высота потолков 2,4м. Цена дома 97 тыс.руб. — в цену входит утепление 100мм и отделка. Цена проекта 6 500 руб.

Проект КД-63 Одноэтажный каркасный дом 6х6 24(36)м 2 : высота потолков 2,4-3,4м. Цена дома 226 тыс.руб. — в цену входит утепление 100мм и отделка. Цена проекта 8 300 руб.

Проект КД-31 Одноэтажный каркасный дом 6х6 36м 2 : высота потолков 2,5м/2,7м. Цена дома 252 тыс.руб. — в цену входит утепление 100мм и отделка. Цена проекта 8 700 руб.

Проект КД-32 Одноэтажный каркасный дом 6х7 42м 2 : высота потолков 2,5м/2,7м. Цена дома 305 тыс.руб. — в цену входит утепление 100мм и отделка. Цена проекта 9 700 руб.

Проекты каркасных домов 50-100 кв.м.
Проект КД-3 (у дома 3 варианта планировки помещений) Одноэтажный каркасный дом 7,5х12м 90м 2 : высота потолков 2,7м/2,9м. Цена дома 465 тыс.руб. — в цену входит утепление 150мм и отделка. Цена проекта 8 500 руб.

Проект КД-33 (у дома 3 варианта планировки помещений) Одноэтажный каркасный дом 7,5х12м 75м 2 : высота потолков 2,7м/2,9м. Цена дома 446 тыс.руб. — в цену входит утепление 200мм и отделка. Цена проекта 9 500 руб.

Проект КД-34 Одноэтажный каркасный дом 7,5х10,5м 78м 2 : высота потолков 2,7м/2,9м. Цена дома 548 тыс.руб. — в цену входит утепление 200мм и отделка. Цена проекта 10 900 руб.

Проект КД-35 Одноэтажный каркасный дом 8(9,5)х10,6 91(98)м 2 : высота потолков 2,7м/2,9м. Цена дома 583 тыс.руб. — в цену входит утепление 150мм и отделка. Цена проекта 11 500 руб.

Проект КД-37 Одноэтажный каркасный дом 6(8,5)х10,6 68(90)м 2 : высота потолков 2,5м. Цена дома 458 тыс.руб. — в цену входит утепление 150мм и отделка. Цена проекта 11 700 руб.

Проект КД-38 Одноэтажный каркасный дом 6(7,5)х10 66м 2 : высота потолков 2,44м. Цена дома 469 тыс.руб. — в цену входит утепление 150мм и отделка. Цена проекта 10 600 руб.

Проект КД-42 Одноэтажный каркасный дом 8х9,2 73м 2 : высота потолков 2,74м/2,94м. Цена дома 466 тыс.руб. — в цену входит утепление 200мм и отделка. Цена проекта 9 800 руб.

Проект КД-47 Одноэтажный каркасный дом 8х12 96м 2 : высота потолков 2,7м/2,9м. Цена дома 645 тыс.руб. — в цену входит утепление 200мм и отделка. Цена проекта 14 000 руб.

Проект КД-65 Одноэтажный каркасный дом 6,5х10 65-85м 2 : высота потолков 2,6м-4,8м. Цена дома 507 тыс.руб. — в цену входит утепление 150мм и отделка. Цена проекта 8 900 руб.

Проект КД-68 Одноэтажный каркасный дом 8х9,3м 74м 2 : высота потолков 1,9-3,1м. Цена дома 457 тыс.руб. — в цену входит утепление 150мм и отделка. Цена проекта 14 400 руб.

Проект КД-421 Одноэтажный каркасный дом 8х9,2 73м 2 : высота потолков 2,7 или 2,9м. Цена дома 510 тыс.руб. — в цену входит утепление 200мм и отделка. Цена проекта 11 400 руб.

Проекты каркасных домов 100-150 кв.м.
Проект КД-4 Одноэтажный каркасный дом 10х13м 126м 2 : высота потолков 2,8м/3м. Цена дома 727 тыс.руб. — в цену входит утепление 200мм и отделка. Цена проекта 10 500 руб.

Проект КД-44 Одноэтажный каркасный дом 9х12м 108м 2 : высота потолков 2,8м. Цена дома 736 тыс.руб. — в цену входит утепление 200мм и отделка. Цена проекта 14 200 руб.

Проект КД-45 Одноэтажный каркасный дом 9х12м 108м 2 : высота потолков 2,8м/3м. Цена дома 690 тыс.руб. — в цену входит утепление 200мм и отделка. Цена проекта 14 000 руб.

Проект КД-451 Одноэтажный каркасный дом 9х12м 108+20м 2 : высота потолков 2,8м/3м. Цена дома 712 тыс.руб. — в цену входит утепление 200мм и отделка. Цена проекта 14 300 руб.

Проекты каркасных домов 150-200 кв.м.
Проект КД-43 Одноэтажный каркасный дом 10х16,7 162м 2 : высота потолков 2,6м/2,8м. Цена дома 950 тыс.руб. — в цену входит утепление 200мм и отделка. Цена проекта 14 700 руб.
Варианты проектов 1-этажных коттеджей
Из типовых планировок популярностью пользуются 4 вида. И независимо от используемых при возведении материалов, в ловких опытных руках получаются красивые одноэтажные дома: проекты и фото примеров рассмотрим прямо сейчас.
Дом с тремя спальнями для взрослых и двоих детей.
Общая площадь 100 кв. м. Кухня с аркой и объединенная гостиная-столовая занимают треть всего пространства. Широкая стеклянная раздвижная дверь на террасу является изюминкой этого дома. Летом обедать можно на свежем воздухе. Рядом с кухней есть котельная. Ванная комната небольшая, но в ней вмещается вся необходимая сантехника. Прихожая и холл разделены дверью. Все спальни находятся рядом друг с другом, что удобно для родителей и детей.

Сделать маленький и комфортный дом с тремя спальнями не получитсяИсточник belprim.ru
Дом с гаражом.
В наше время у каждой семьи есть минимум 1 автомобиль. Оставлять его на улице круглый год нежелательно, чтобы избежать досрочного появления ржавчин. Идеальное решение – одноэтажные дома с гаражом под одной крышей. Его можно оборудовать прямо в доме, тогда людям не придется мокнуть под дождем лишний раз. Пример такого проекта на рисунке.
Дом площадью 320 кв. м требует просторного земельного участка. Но в нем продумано всё до мелочей. Зайти внутрь можно через любой из 4 входов: крыльцо, гараж, летняя кухня и терраса. В коттедже предусмотрены 2 спальни размерами около 19 кв. м. Одна из них для родителей, другая для однополых детей. 2 санузла и постирочное помещение, гардеробная – ко всем комнатам свободный доступ из холла. Кухня совмещена с гостиной, общая ее площадь 36 кв. м. Здесь же выход на просторную террасу для застолья в теплую погоду. Летняя кухня не утеплена, гараж тоже можно оставить холодным. В доме выделана комната для рабочего кабинета. При необходимости там будут ночевать гости.

Гараж выглядит как естественное продолжение домаИсточник homius.ru
Гараж может быть и фронтальным, т. е. выступающим вперед. Жилая площадь 171 кв. м. Дом рассчитан на семью до 6 человек. В нем 4 спальни – для родителей и 3 детей. Чтобы перед ванной комнатой не возникало очередей, дизайнеры предусмотрели 2 совмещенных санузла и 1 гостевой туалет с раковиной и унитазом. Из всех спален есть выход на задний двор. Огромная гостиная в 40 кв. м объединена с 13-метровой кухней. Отличное место для посиделок большой семьи, чему располагает длинный стол и камин. Через гараж можно зайти в тамбур дома или котельную.

Фронтальный гараж обычно больших размеров – можно разместить две машиныИсточник teplodoma.ru
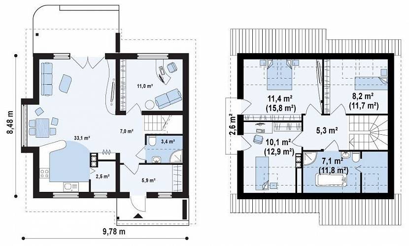
Дом с мансардой
Если участок 6-8 соток, то коттедж с одним этажом получится около 70 кв. м. Для 2-3 человек места хватит, а вот большой семье будет тесно. В таком случае рекомендуется строить дом с мансардой. Это экономичное решение, которое добавит около 50 квадратов полезной площади.

Лестницу на мансарду обычно размещают посередине одной из стенИсточник opsar.ru
На 1 этаже разместится кухня-гостиная 33 кв. м, санузел, котельная и рабочий кабинет. Из общей комнаты есть выход на задний двор, а также большое окно возле стола. Общая жилая площадь 70 кв. м. Лестница на мансарду внутри здания.
На обустроенном чердаке находится 3 спальни, из двух смежных есть выход на небольшой балкон. А также просторная ванная комната. Общая площадь этажа около 45 кв. м.

Дом с мансардой отличается большой площадью крышиИсточник prefabeko.pl
Дом с эркером.
Интересное дизайнерское решение – эркер. В нем можно разместить зимний сад, стол или кресло. Внешний вид такого дома выигрывает перед стандартными квадратными коробками. Пользуются спросом деревянные одноэтажные дома, проекты которых предусматривают эркер.
Загородный коттедж 60 кв. м
Средний размер дома помогает поместить внутрь достаточное количество мебельного гарнитура. Такая обстановка поможет удачно разместиться одной большой семье. Здесь допускается расположить не только взрослую спальню и гостиную, но еще и нескольких детских комнат. Актуально для многодетных семей.
Планировка дома, в площадь которой входит терраса Источник d-brusovoi.ru
Планировка дома с небольшой мансардой под крышей Источник srubdomabani.ru
Гостиную в таком доме можно сделать большую на весь холл. С нее делаются выходы в другие помещения. Если комната получается слишком большой, ее можно визуально разделить на функциональные зоны. Тамбур, санузел и кухню в подобных помещениях распределяют в одной части дома, а остальную оставляют для жилых комнат.
В доме с обустройством дополнительного этажа в чердачном помещении можно сделать две спальни на первом этаже и санузел. Лестница в таких сооружениях чаще всего обустраивается именно в прихожей или холле.





































