Проектирование теплицы из профиля
Выбрав форму будущего парника, нужно взять несколько листков бумаги (желательно миллиметровки или в клетку), карандаш, ластик и приступить к составлению чертежа постройки. При наличии навыков работы с компьютером, чертеж можно составлять в программах для 3D-моделирования и проектирования. Из них самая простая в освоении — Google SketcUp.

Проектирование теплицы с помощью Google SketchUp
Для начала необходимо выбрать размеры постройки. При этом исходите из габаритов стандартного листа сотового поликарбоната – 6 на 2,1 м. Учитывайте также способ соединения отдельных элементов обшивки друг с другом – при помощи соединительных профилей или внахлест. Чаще всего дачники выбирают ширину теплицы, равную 2-3 м. Длина же может составлять 4, 6, 8 и 10 м, с некоторыми поправками на стандартные размеры листа СПК. Высота арочной теплицы редко делается больше 2,1 м, для двухскатной же конструкции особых ограничений нет, главное — соблюдать угол наклона 25-30° для скатов.

Пример чертежа теплицы из профиля
Не забудьте также о дверном проеме, продумайте, какие его размеры будут удобны для вас
Уделите внимание расположению форточек и фрамуг, особенно в теплицах большой площади, так как растения в них будут особенно нуждаться в вентиляции
Заключительный этап проектирования – продумывание и прорисовка на чертеже соединений профиля в единый каркас. Не забудьте подсчитать количество нужного материала и крепежей для последующей закупки с учетом запаса в 10-15%.
Выбор места, размеров, планировка парника
Перед началом строительства важно выбрать идеальное место, которое в будущем избавит от многих проблем. Ищите как можно более ровное место, чтобы перепады высоты грунта были минимальными
Лучше также немного отступить от всех уже имеющихся построек на участке.
Конечно, если вы не собираетесь строить парник, который должен иметь общую сторону с домом
Обратите внимание и на то, чтобы на место будущего парника падало как можно больше света от солнца
В будущем это положительно скажется на урожае.
Чертежи: как сделать самому, готовые примеры
Лучше выбирать готовые чертежи, так как там уже используется готовая, продуманная конструкция, которую, скорее всего, кто-то уже испытал.
Самостоятельно нужно рассчитывать нагрузку на стенки и крышу и заранее закладывать в чертеж профиль для усиления.
Вот несколько хороших готовых примеров.




Подбор и подготовка материалов, оборудования
Перед началом монтажа нужно собрать все материалы и инструменты, которые будут нужны. Вот минимальный нужный набор:
- Ножницы по металлу;
- Карандаш;
- Рулетка;
- Шуруповерт;
- Опалубка;
- Песок;
- Брус.
Как подготовить фундамент
По периметру будущей теплицы прокапывается траншея, на ее дно нужно разместить песок.
Далее устанавливается опалубка, которая заливается цементным раствором. Обязательно помните о том, что фундаменту нужно застыть. На это уходит около 20 дней.
Монтаж каркаса и способы крепления
Каркас монтировать нужно строго согласно чертежу. Как правило, снизу устанавливается направляющий профиль, к которому будет крепиться остальной каркас.
Если нужно изогнуть какой-то элемент, то его боковые части прорезаются ножницами по металлу. Сам же элемент после этого легко гнется.
Между собой часки каркаса скрепляются с помощью саморезов, получается достаточно надежное соединение.
Обшивка: какой выбрать укрывной материал
Подобные конструкции выгоднее и удобнее всего обшивать с помощью поликарбоната. Этот материал достаточно держит тепло, а также прочен и устойчив к внешним факторам.
Если использовать поликарбонат, то получится надежный парник, который запросто простоит долгое время.




Усовершенствование конструкции, отопление, автоматизация
Совершенствовать теплицы можно практически бесконечно. Начать можно с установки форточек или удобной двери.
Для теплицы из профилей хорошим вариантом отопления будет установки тепловой пушки. Этот вариант очень актуален из-за того, что не нужно топить большую площадь.
Деревянная теплица под поликарбонат своими руками
В последние годы теплицы из поликарбоната становятся все более популярными и, по-видимому, обгоняют стекло в качестве основного материала, используемого для покрытия теплиц. В этой статье освещается конкретный пример, как сделать теплицу с деревянным каркасом под поликарбонат своими руками. Если ищете подходящий вариант для своего участка, возможно, это пошаговое руководство вам пригодится. В инструкции все расписано очень подробно, есть списки инструментов общих затрат, ссылку найдете ниже под фотографиями.
Вот материалы, которые следует закупить для этого проекта:
- Доски 2 х 4
- 16 штук 250 см
- 2 штуки 350 см
- 4 штуки 500 см
- Листы поликарбоната 3,5 м 21 штука и 2,5 м 4 штуки
- Бетонные блоки для фундамента
Это не считая расходов материалов на внутренне оборудование
Источник фото: theelliotthomestead.com/2014/07/how-to-build-a-greenhouse/
Монтаж металлического каркаса под поликарбонат
Вопрос о том, как сделать арочную теплицу активно обсуждают на садоводческих форумах. Каркас из профильной трубы под полимером считается довольно прочным сооружением и его вполне можно построить своими руками.
Основательный фундамент под металлический каркас

Подробная схема строительства фундамента
Фундамент под металлический каркас – обязателен. Ведь если срок службы строения более 20 лет, то его основание должно быть из прочных и долговечных материалов.
Внимание! Фундамент из бетона следует заглублять до уровня промерзания грунта, иначе его «поведет» в морозный период. Ленточный фундамент из кирпичей и бетона вполне надежно, для его строительства необходимо следовать простым рекомендациям:
Ленточный фундамент из кирпичей и бетона вполне надежно, для его строительства необходимо следовать простым рекомендациям:
- Выбрать солнечное, безветренное место. Разметить размеры фундамента, исходя из плана. Выкопать траншею по периметру будущей постройки. Ширина канавы должна быть 20 см, глубина – 10 см.
- Смонтировать опалубку из любых досок, укрепить ее арматурой. Залить в траншею бетон, утрамбовывая его штыковой лопатой для удаления пузырьков воздуха.
- Горизонтальность бетонной ленты следует проверить с помощью строительного уровня.
- В торцы и боковые стороны ленты нужно вставить анкерные болты (12 мм) в соответствии с основанием будущего каркаса.
- После полного застывания бетона можно выкладывать несколько слоев кирпичной кладки. Необходимо контролировать полное заполнение швов раствором и совпадение с местами расположения анкерных болтов.
- Перед строительством каркаса нужно просверлить в нем отверстия для анкерных болтов и закрепить соединения гайками.
- На фундамент необходимо положить один слой гидроизоляционного материала.
Каркас из профильной трубы: шаг за шагом

Добротный каркас из металла
Для сооружения каркаса понадобятся следующие составляющие:
- 10 труб 40х20 мм;
- 40 перемычек для рам шириной 20х20 мм, длиной – 670 мм;
- 2 трубы для продольных балок 40х40 мм, длиной – 4 м.
- 2 трубы для поперечных балок 40х40 мм, длиной – 3 м.
Пошаговая инструкция:
- Закрепить по периметру готового фундамента продольные трубы.
- Приварить к ним поперечные.
- Согнуть необходимое количество арок с помощью трубогиба.
- Первую дугу следует приварить к продольной трубе таким образом, чтобы совпадали края основания и дуги. Для контроля своих действий лучше использовать отвес.
- Поочередно нужно установить все дуги, используя перемычки.
- Если все было сделано правильно, то последняя приваренная арка придется как раз на край продольных оснований.
- Теперь следует приварить торцы с перегородками под дверь и под форточки.
- Половина работы сделана. Последним этапом будет крепление поликарбоната с помощью саморезов и термошайб.
- Осталось повесить на петли двери и окна и установить на них ручки.

Арочная теплица изнутри
Такая постройка не боится ураганных ветров, снежных бурь, душного летнего зноя. В ней любым растениям комфортно и уютно, и они искренне отблагодарят за заботу щедрыми урожаями.
Чертежи теплиц из профильной трубы с размерами. Подготовка чертежей с размерами для теплицы из профильной трубы и создание сметы
Чаще всего эскиз будущего парника разрабатывается с учётом стандартных габаритов. Однако при детальной проработке чертежа теплицы из профильной трубы с размерами могут вноситься определённые коррективы с учётом её месторасположения. Предлагаем познакомиться с особенностями создания чертежей для конструкций различной формы.

Подробный чертёж упростит изготовление своими руками
Создание чертежа каркаса из профильной трубы для шатровой теплицы
При разработке чертежа каркаса теплицы из профильной трубы с шатровой кровлей следует определиться с углом наклона крыши. Выбор делается с учётом ветровой и снеговой нагрузки, характерной для конкретной местности, и обычно составляет 30−45º. Высоту боковых стенок выбирают из диапазона 1,7−2 м.
При расчёте габаритов кровли задают угол наклона крыши и ширину будущей постройки. Длина ската будет численно равна гипотенузе прямоугольного треугольника, один из катетов которого равен половине ширины парника. В этом случае длина ската будет составлять половину ширины теплицы, разделённой на косинус угла ската, а высота – произведение половины ширины парника на тангенс угла наклона кровли. Например, для теплицы шириной 3 м с углом наклона кровли в 45º расчёты производятся следующим образом:
- длина ската = 1,5 м / cos45º = 2,12 м . Дополнительно предусматривается напуск длиной 0,1–0,3 м. Окончательно длина ската при напуске 0,3 м будет равна 2,42 м;
- высота кровли = 1,5 м × tg45º = 1,5 м. Если высота боковых стен составляет 2 м, суммарная высота строения будет равна 3,5 м.
Ширину дверного проёма стоит выбрать 0,7–0,8 м. Размеры форточек для вентиляции должны составлять 0,3×0,5 либо 0,5×0,5 м. Для зимней теплицы стоит предусмотреть тамбур. Вертикальные стойки должны располагаться через 0,6–1 м. Выбрав наибольшее расстояние, можно уменьшить затраты на изготовление каркаса. Меньшее позволит увеличить срок службы укрывного материала.

Для расчёта арочного парника надо знать формулы длины окружности
Приступая к расчёту, следует определиться с высотой будущего парника. Обычно она составляет 1,9–2,4 м. Сама арка, по сути, является половиной правильной окружности. Разрабатывая чертёж теплицы из металлопрофиля своими руками, следует учесть, что длина правильной окружности равна
L = 2 × π × r, где
π – 3,14;
« Стандартная длина поликарбоната и профилированных труб − 6 м. Исходя из этого, следует рассчитывать высоту будущей конструкции. Ширина будет равна двум высотам.»

Для расчёта арочного парника надо знать формулы длины окружности
Создание чертежа для изготовления своими руками фундамента под теплицу из металлопрофиля
Необходимость обустройства фундамента под теплицу обусловлена небольшим весом конструкции из профиля. Как следствие, при достаточно сильном порыве ветра парник может улететь. Разрабатывать чертёж основания следует после того, как будут определены габариты каркаса теплицы из профильной трубы. Своими руками обычно обустраивают фундамент, высота которого равна 0,3–0,8 м. Остальные параметры стоит выбрать на 0,2–0,3 м больше размеров парника.

Размеры парника и основания взаимосвязаны
Теплица из профиля для гипсокартона своими руками – инструкция по изготовлению
Проект металлической теплицы рекомендуется взять готовый, типовой, в нем рассчитана эргономика, размеры, нагрузки. Для простых сооружений самостоятельный чертеж не составит труда. Далее предложим поэтапную инструкцию, как делается теплица из алюминиевого профиля своими руками, но в данной конструкции допустимо использовать и стальной профиль.
Чертеж теплицы из профиля для гипсокартона, для усиленных конструкций рекомендуется вместо диагоналей установить поперечники с шагом 50 см
Изучив чертеж понятно, что вся теплица состоит из нескольких узлов:
- торец с укосами для крыши с дверью;
- глухой торец с укосами под крышу;
- боковые стены – прямоугольники, состоящие из вертикальных стоевых и поперечников для жесткости;
- торцы стянуты между собой длинным поперечным металлическим профилем – конек;
- 2 поперечника на середину скатов, между ними перпендикулярно устанавливаются ребра — стропила;
- обшиваем каркас поликарбонатом, пленкой.
Сборка
По предложенному алгоритму собираем элементы из металлического п-образного профиля для гипсокартона, соединяем детали крабом, как на фото ниже.
Как выполнить соединение металлического профиля
Нарезаем профиль в размер, согласно чертежу, на ровной площадке собираем торцы.
Между вертикальными стойками расстояние 900-100мм, но не более 1200 мм
Устанавливаем торцевые узлы на фундамент, проверяем геометрию, крепим на уголки и длинные саморезы. По такой же схеме изготавливаем бока, крышу, устанавливаем по месту, делаем соединение.
Как правильно соединять перпендикулярные детали из металлического профиля
Проверяем металлическую конструкцию на прочность, при необходимости внутри укрепляем диагональными вставками либо добавляем поперечников.
Конструкция теплицы из поликарбоната на металлическом каркасе укрепляется дополнительными поперечными деталями
Осталось обшить металлическую конструкцию укрывным материалом. Такая теплица из оцинкованного профиля с поликарбонатом прослужит более 10 лет, без дополнительных вложений. Так же предлагаем посмотреть, как сделать арочную пленочную теплицу из металлического профиля для гипсокартона своими руками, на видео поэтапный процесс.
[su_youtube url=»https://www.youtube.com/watch?v=DuQchecw_8o»]
Преимущества профиля для гипсокартона как материала для теплицы
Чтобы теплица была прочной и отвечала всем необходимым требованиям, нужно выбрать качественный материал для строительства. Возвести её собственноручно можно из различных материалов:
- Дерево
- Стекло
- Металл
- Пластик
- Пленка
Теплица из профиля для гипсокартона своими руками превосходит остальные материалы по следующим причинам:
- Небольшая цена материала
- Экологическая безопасность
- Высокая прочность
- Долгий срок службы
- Быстрота и простота возведения конструкции собственноручно
Все вышеперечисленные плюсы имеются у других материалов лишь по отдельности, ни у одного нет всего в комплексе.

Теплица из профиля для гипсокартона своими руками чертежи. Необходимые материалы и инструменты
Сделать парник из профиля для гипсокартона своими руками не сложно, главное — иметь необходимые материалы и инструменты:
- Рулетка для замеров
- Шуруповерт
- Болгарка
- Ножницы для резки металла
- Уровень строительный
- Электролобзик
- Маркер
Материал для возведения теплицы:
- Металлический профиль для гипсокартона с оцинковкой
- Поликарбонат в листах для перекрытия каркаса
- Саморезы по металлу
- Подкладки из резины под саморезы
- Отвесы для выравнивания стен
- Дверь с коробкой готовая к установке
Выбор профиля немаловажен, потому что влияет на конечный результат и его качество.
Чтобы теплица была прочной, надёжной и служила не один год, необходимо комбинировать профиль из нескольких видов. На строительном рынке можно приобрести следующие виды:
- Направляющие. Собирают по всему периметру конструкции, к ним легко крепить другие элементы парника
- Потолочные. Имеют хорошие рёбра жёсткости, что подходит для перекрытия
- Стоечные. Их используют для основной несущей опоры
- Арочные. Применяют для дверного проёма или каркаса в виде арки
Для возведения конструкции парника хорошим выбором будет 42-й металлопрофиль стоечный и направляющий, они легки в монтаже и надёжны в эксплуатации. Если размер теплицы будет больше, чем 3х6, тогда надёжнее 50 профиль.
Если строится теплица из направляющих для гипсокартона своими руками, но другие виды профиля не используются, то результат получится некачественным. Направляющий профиль необходим для выравнивания плоскости, но под основу он не подходит.

Как покрыть теплицу поликарбонатом
Самостоятельно покрыть теплицу листами поликарбоната не сложно, а главное дешевле, чем нанимать специалистов. Нет опыта? Так для этого и существую пошаговые инструкции. Если хотите получить максимум информации, что такое панели из поликарбоната, как их правильно выбрать, подготовить и обшить теплицу своими руками, прочитайте познавательную статью по этой ссылке, что находится ниже под фотографиями. Посмотрите галерею с подборкой картинок, все изображено красиво и доступно, с подписями и стрелками. Потратьте немного времени и через полчаса будете специалистом по поликарбонату. И с ценами разберетесь, и с аксессуарами, и какой поликарбонат сколько пропускает ультрафиолета и даже как крепить листы в зависимости от температуры воздуха.
8 причин, по которым теплица из поликарбоната лучше, чем стеклянная теплица
Стоимость
Бюджет является наиболее важным и стартовым фактором в начале любого проекта. Таким образом, если ваш бюджет ограничен, панели из поликарбоната будут стоить дешевле по сравнению со стеклом. Не только цены на поликарбонат меньше, чем на стекло, но также стоимость монтажа и рабочая сила, необходимая для панелей из поликарбоната, меньше, чем у стекла. Простота в обращении и обслуживании теплиц из поликарбоната экономит не только деньги, но и большую часть вашего времени, которое уходит на установку, обслуживание и ремонт.
Прочность.
Поликарбонат имеет еще одно преимущество прочности по сравнению со стеклом. Он не разбивается, как стекло. Они могут противостоять воздействию обычных вещей, с которыми может столкнуться теплица. Град, любые тяжелые летящие или брошенные предметы, попадающие в окна теплицы. И если рядом с вами играют дети, то вам не придется переживать за разбитые окна из-за ударов мяча или других предметов.
Лучшие изоляционные свойства
Одним из главных факторов использования поликарбонатных покрытий для теплицы являются изоляционные свойства поликарбоната. Они обеспечивают намного лучшую изоляцию теплицы, чем обычное стекло. Таким образом, средняя температура будет на несколько градусов выше, чем в стеклянной теплице
Поддержание температуры очень важно, это улучшает производительность теплицы. А двойной слой, доступный в поликарбонате с двойными стенками, еще больше повышает тепловую эффективность
Если вы используете теплицу в коммерческих целях, то можете рассчитывать на круглогодичный урожай более высокую доходность. Кроме того, вам не потребуется установка обогревателей, как в случае со стеклянными теплицами. Это сэкономит электроэнергию и деньги.
Долговечность теплицы из поликарбоната
Прочность поликарбоната и его высокая ударопрочность имеют более длительный срок службы, чем у стеклянных теплиц. Поликарбонат может противостоять большому количеству повреждений.
Простота установки
Благодаря легкому весу стены и крыша из поликарбоната намного легче вписываются в каркас теплицы. Даже один человек сможет установить на каркас теплицы листы поликарбоната, в то время как для установки стеклянных панелей требуется несколько человек
При работе с поликарбонатом не требуется особой осторожности. Если нужно будет заменить панели, это сделать достаточно просто
Собрать теплицы из поликарбоната своими руками может любой, просто используя свое творчество и немного знаний. В то время как стеклянные теплицы требуют квалифицированных рабочих.
Защита от ультрафиолетовых лучей
Стенки из поликарбоната обеспечивают защиту от вредного ультрафиолетового излучения.
Рассеивание света
Поликарбонат – это пластик, а пластик рассеивает больше света, чем стекло. Таким образом, в теплице свет будет распространяться более равномерно. Равный квант света, полученный всеми растениями, не потребует от вас перестановки растений из области большего количества света в область меньшего или наоборот. Это экономит время.
Варианты настройки
Листы из поликарбоната доступны в виде одностенных, двустенных или трехстенных панелей. Двустенные панели удерживают большее количество тепла, чем одностенные. Таким образом, даже среди панелей из поликарбоната у вас есть много вариантов на выбор. Стеклянные панели не дают такой возможности. Кроме того, панели из поликарбоната бывают разных форм и размеров, можете выбрать тот, который решает ваши задачи.
Профиль для каркаса – какой выбрать
Ведь теплицы тоже делятся на категории. Одни предназначены для сезонного использования под рассаду, а другие для всесезонного выращивания растений.
Какая теплица – такой и каркас
Если в первом случае, как правило, для покрытия теплицы используется полиэтиленовая пленка и покрывается ей каркас теплицы только перед непосредственным использованием. Другими словами такая теплица используется относительно короткое время и не подвергается разнообразной нагрузке.
Конечно, для такой теплицы не потребуется устройство мощного каркаса, способного выдерживать ветровую и снеговую нагрузку.
Другое дело если потребовалось устроить теплицу, которую будут использовать круглый год, тут есть о чем задуматься.
Долговечное покрытие требует долговечный каркас
Современные материалы, для покрытия теплицы, имеют большой срок службы. Как правило, он составляет 10 – 20 лет. Конечно, имея такой материал покрытия, каждому хозяину теплицы хочется иметь каркас под стать долговечному материалу.
Поэтому все внимание владельцев переключается на металлический профиль и трубы. Чтобы понять, что лучше использовать для каркаса своей теплицы, необходимо более детально рассмотреть данные материалы
Краска как защита
В продаже имеются каркасы из крашеной трубы. На первый взгляд данная конструкция внушает доверие.

Каркас для теплицы с покрытием порошковой краской.
Сечение данной конструкции говорит о прочности будущего каркаса. Но ведь мы говорим о теплице, которую собираемся использовать круглогодично.
Крашенная профильная труба – долговечна?
Крашенный профиль.
Представим, что у нас есть теплица с каркасом из профильной трубы и покрытием из поликарбоната.
- Используя поликарбонатное покрытие и каркас из профильной трубы, приходится увеличивать пролеты между несущим каркасом, профильная труба довольно дорога.
- В итоге сильно снижается прочность поликарбонатного покрытия, оно может сломаться от незначительной снеговой нагрузки.
- Если уменьшить пролеты, тем самым увеличив количество элементов каркаса, себестоимость теплицы возрастет в разы.
Особенности порошковой покраски
Но и это еще не все.
- Многие наверно видели такую трубу в продаже. Сверху она покрывается порошковой краской.
- Предлагая данный материал, продавцы как раз делают упор на данное покрытие, суперсовременно, долговечно, надежно.
Но надо понимать, что какое бы красочное покрытие не было, порошковое или обычное, это всего лишь красочное покрытие.
Малейшее механическое воздействие, при транспортировке, сборке и т.д, и на данном каркасе появляются маленькие сколы краски, вы даже можете их вначале и не заметить.

Сколы на красочном покрытии.
Что в таком случае произойдет? Ваша теплица обречена.
- Через 1,5 – 2 года краска начнет терять внешний вид, в местах сколов появится ржавчина, при этом если заметно будет небольшое пятно, то на самом деле поверхность трубы пораженной ржавчиной будет намного больше.
- В конечном итоге такая конструкция прослужит не более 4 – 5 лет.
Плохо? Да, но и это еще не все.
Приобретая такой каркас стоит знать, что защитное покрытие на данном материале находится только с наружной сторону.
А как же внутренняя сторона? Она совершенно не защищена.
В условиях теплицы, где водяные испарения соседствуют с теплым воздухом, это смерть для каркаса в самые короткие сроки. Мы не зря предрекли срок службы такому каркасу 4 – 5 лет, это в лучшем случае.
Это интересно: Кукушка на крыше — устройство, чертежи, монтаж
Как собрать теплицу самостоятельно?
Чтобы избежать проблем со стыковкой, перед сборкой парника нужно уяснить следующее:
- направляющие профили шире, чем стоечные, в связи с этим обхват станет плотнее;
- с помощью направляющих надо производить установку горизонтальных компонентов каркасной конструкции; используя стоечные профили, сооружаются вертикальные и наклонные компоненты;
- в процессе стыковки с поперечным сооружением стены профили нужно будет надрезать и подогнуть;
- каркасную конструкцию следует собирать с помощью саморезов со сверлом, шляпки у которых плоские.
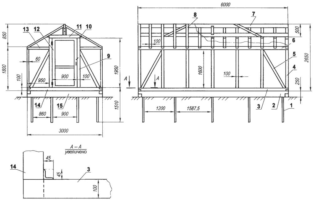
Чертежи теплиц из профиля изображены на рис. 3 и рис. 4.
Чертежи теплиц с размерами. На что нужно обратить внимание при проектировании
Чтобы правильно рассчитать, сколько потребуется материала, сперва составляют чертеж теплицы с двухскатной крышей. Можно скопировать чертеж, представленный в интернете, а можно придумать свой вариант. Разрабатывая свой проект строительства, рекомендуется рассчитывать количество материала, опираясь на стандартную длину профилей. Размеры теплицы выгоднее делать такими, чтобы при нарезке оставалось как можно меньше отходов.

Разрабатывая чертежи своей теплицы, нужно учитывать следующие нюансы:
- размеры стандартных листов поликарбоната и их раскрой;
- увеличение материала под действием жары;
- способность выдерживать возможные внешние нагрузки;
- края листов поликарбоната должны размещаться на опорах из профиля;
- наличие ряда комплектующих: перфорированные ленты, термические шайбы, саморезы и т. д.

В чертежах не забудьте предусмотреть определенное количество соединений, чтобы обеспечить надежное крепление листов поликарбоната к каркасу и между собой. Отверстия под саморезы должны быть с учетом термического расширения материла. Если это не учесть, то поликарбонат может покоробиться под действием высокой температуры летом, а при морозе возможно растрескивание пластика.
Важно также правильно размещать листы сотового поликарбоната. Их нужно устанавливать так, чтобы ячейки располагались вертикально, и конденсат беспрепятственно стекал по каналам листа наружу





































