Меры безопасности
Дымогенератор является устройством повышенной пожарной опасности. Несмотря на невысокую температуру процесса копчения, выполнение следующих правил поможет избежать неприятностей:
- Установка прибора производится на ровную негорючую поверхность.
- Окраска возможна только жаростойкой краской.
- Размещать аппарат нужно вдали от электропроводки, легковоспламеняющихся жидкостей и горючих материалов.
- Заводское устройство должно быть оборудовано системой аварийного отключения.
Выполнение этих условий поможет не только приготовить вкусную пищу, но и предотвратить возгорание и ущерб здоровью.
Originally posted 2018-04-18 12:32:38.
Различия по забору дыма
После начала работы поток воздуха из компрессора смешивается с дымом и поступает в коптильную камеру. Этот узел называется эжектор.
Находиться эжектор может как в верхней части генератора дыма, над щепой, так и снизу, возле зоны горения.
Устройство и конструкция аппарата с нижним расположением эжектора
Аппарат с забором дыма из нижней части хорошо работает при небольших габаритах и маленькой коптильной камере.
В остальных случаях такая конструкция имеет ряд недостатков:
- направление потока воздуха не совпадает с тягой, что ухудшает процесс горения;
- большая камера часто тухнет, а у маленькой ограниченное время непрерывной работы;
- дым в дымоход попадает непосредственно из зоны горения, что повышает его температуру;
- трубу дымохода необходимо защищать от попадания в неё опилок.
От этих недостатков свободна конструкция с верхним отбором дыма.
Аппарат с нижним расположением эжектора
Устройство и конструкция аппарата с верхним расположением эжектора
Эжектор, находящийся в верхней части корпуса на расстоянии нескольких сантиметров от крышки, забирает дым из верхней части камеры сгорания. У такой конструкции есть много достоинств:
- дым имеет более низкую температуру, что упрощает процесс холодного копчения;
- направление естественной тяги совпадает с движением дыма, что обеспечивает более стабильное горение даже при временном отключении компрессора;
Аппарат с расположением эжектора сверху
Дымогенератор для холодного копчения своими руками: чертеж
Составление чертежа – это необходимый подготовительный этап, который позволяет выполнить соответствующие расчеты и обозначить их на бумаге. В схеме обязательно обозначается корпус дымогенератора, который может иметь круглую или квадратную форму.
Корпус самодельного дымогенератора используется в качестве камеры, которая наполняется топливом. Стенки устройства обязательно должны обладать хорошей герметичностью. В противном случае дым, образованный при тлении опилок, будет рассеиваться в окружающее пространство.

Чтобы сделать дымогенератор для холодного копчения своими руками необходимо использовать чертежи
Сами устройства для копчения продуктов подразделяются на разновидности в зависимости от конструктивных особенностей и назначения. Сегодня можно встретить габаритные стационарные устройства или, наоборот, более компактные, переносные. В конструкции коптилки может присутствовать заслонка. Этот элемент позволяет увеличить приток воздуха в камеру, которая содержит топливо.
Самодельная коптильня холодного копчения может иметь две топки. Такая конструкция направлена на увеличение тяги в системе. Дымогенераторы используются как в горячих, так и в холодных коптилках. В чертеже указываются все составляющие элементы устройства. Обязательно нужно внести в схему эжектор и его размеры, а также компрессор.
Как сделать дымогенератор своими руками: изготовление эжектора
Эжектор – это устройство, которое является трубкой и используется для создания необходимого показателя тяги в дымогенераторе. Данный прибор классифицируют по месту расположения. В зависимости от этого фактора можно выделить два типа эжекторов:
нижние;

Любой дымогенератор для коптильни холодного копчения состоит из контейнера, насоса (компрессора) и эжектора
верхние.
Первый вариант не рекомендуется специалистами для коптилок, изготовленных собственноручно. Это связано с тем, что такое размещение препятствует притоку воздуха, что, соответственно, отражается на тяге в конструкции. Трубки, установленные в нижней части, требуют постоянного контроля, что не очень удобно. При составлении чертежа дымогенератора необходимо заранее продумать расположение данной трубки и зафиксировать его на рисунке.
Избежать проблем с тягой довольно просто. Все, что для этого нужно, –разместить эжектор в верхней половине дымогенератора. Такой ход имеет несколько преимуществ. Установка эжектора в верхней части способствует увеличению объема зоны сгорания. Топливо, расположенное внутри камеры, тлеет медленнее в этом случае, а также уменьшается вероятность того, что оно потухнет.
Так производится сборка эжектора для дымогенератора своими руками. Чертеж, фото и пошаговая инструкция – все это позволяет выполнить грамотную сборку данного изделия.

Схема эжектора для дымогенератора холодного копчения
Из чего сделать компрессор для дымогенератора своими руками?
Компрессор считается одной из важнейших деталей прибора, который генерирует дым для копчения продуктов. Его можно приобрести отдельно, после чего присоединить к конструкции. Но чаще всего для этих целей используются различные подручные материалы, которые можно найти в каждой квартире или доме.
Статья по теме:
Нагнетатель воздуха своими руками можно выполнить из старого кулера. Данная компьютерная деталь как нельзя лучше подходит для увеличения притока воздуха в конструкцию. Необходимо соблюдать порядок действий по трансформации кулера в компрессор.
В первую очередь потребуется взять пластиковую бутылку и обрезать ее верхнюю часть. Далее с помощью клея следует присоединить вентилятор к внутренней части обрезанного пластикового элемента. С другой стороны (к горлышку) подключается шланг. Второй выход трубки подсоединяется к дымогенератору. Такая конструкция отлично справляется со своей функцией. Единственный ее минус заключается в непрезентабельном внешнем виде.

Компрессор для дымогенератора своими руками можно выполнить из старой компьютерной детали — кулера
Еще одним распространенным вариантом является покупка аквариумного компрессора для дымогенератора. Многие люди отмечают, что устройство для производства дыма может работать и без компрессора. Но эффективность такой установки ниже, так как воздух поступает в нее естественным путем.
Таким образом, для увеличения производительности рекомендуется собрать компрессор. Причем необязательно, чтобы он имел сложную конструкцию. Простой вентилятор для дымогенератора своими руками значительно упрощает копчение, а на его производство уходит не более часа.
Устройство дымогенератора для холодного копчения, сделанного своими руками
Самодельная конструкция состоит из ёмкости с крышкой, трубки для подачи дыма в коптильню и небольшого компрессора. Все составляющие комплекта можно купить по отдельности. Самодельный генератор обойдётся вам гораздо дешевле заводского, а для его изготовления не потребуются какие-то специальные инструменты. Современные «кулибины» обходятся даже без сварочного аппарата. Выглядит этот прибор примерно так:
Самодельный дымогенератор
Схема для дымогенератора холодного копчения своими руками
Схемы устройства несложно найти в сети Интернет. Вариантов несколько, но все они объединены общими деталями конструкции:
Устройство генератора с разными видами эжекции
Эжектор в дымогенераторе
Эжектор – устройство, которое организует циркуляцию дыма из генератора в коптильный бак. Изготовить его можно из обычной водопроводной металлической трубы, а для соединения используют сгоны и уголки из того же арсенала сантехника. Соединять части инжектора можно сваркой, пайкой или резьбой. Проще всего использовать резьбовые соединения.
Размещают эжекторы в верхней или нижней части генератора. При размещении в верхней части продукты разложения опилок оседают на внутренних стенках генератора и на самой щепе в ёмкости, всё это повторно горит и образует большое количество канцерогенных соединений. Специалисты предлагают отдать предпочтение в самодельном дымогенераторе для коптильни холодного копчения нижней эжекции, при которой обеспечивается оптимально чистый дым, а само обслуживание генератора значительно упрощается.
Подробнее об этом в видеоматериале:
Компрессор для дымогенератора коптильни: нужен или нет
Задача компрессора – подача дыма из генератора в коптильню. От интенсивности дымления напрямую зависит результат работы. Холодное копчение – длительный процесс, поэтому компрессор должен работать долго, несколько часов, а то и суток
Важно, чтобы домашнее устройство не потребляло много электроэнергии и было ремонтопригодным
Важный момент – регулировка интенсивности подачи воздуха. Она поможет правильно подобрать режим и продолжительность копчения
Для небольшой камеры достаточно мощности компрессора в 0,8 атм, с такой задачей легко справляется небольшой прибор, к примеру, аквариумный. Для больших коптилен умельцы используют автомобильные компрессоры или детали от холодильника.
Камера для копчения
Для качественного холодного копчения потребуется несколько суток, но за это время в камере могут образовываться и вредоносные микроорганизмы, которые способны испортить продукты
Именно поэтому важно сделать камеру герметичной и правильно организовать весь процесс
Самый простой вариант – сделать камеру из двухсотлитровой металлической или деревянной бочки
Важно добиться герметичного стыка трубы дымогенератора и камеры. Бочку устанавливают на кирпичи, а на дно укладывают поддон для сбора жира
Внутри импровизированной камеры приваривают несколько кусков арматуры для подвешивания продуктов. На эту же арматуру можно установить решётки, если вы хотите разложить рыбу или сыр.
Можно изготовить камеру из кирпича или листового железа. Такие капитальные сооружения подходят для тех, кто собирается постоянно использовать коптильню или зарабатывать на этом. Швы кирпичной кладки тщательно замазываются глиной
Если камера металлическая, то важно проследить за качеством сварных швов
Дымогенераторы: от применения до принципа работы
Название этого устройства — дымогенератор — говорит само за себя. При помощи него происходит выработка дыма и подача его в коптильный шкаф.
Описание принципа работы
В нижнюю часть камеры, изготовленной обычно из жаропрочного материала, закладываются опилки. Затем, через специальное отверстие (поддувало), они поджигаются. Посредством поддувала также регулируется тяга.
В результате тления опилок в закрытой камере образуется необходимое количество дыма, поднимающегося вверх. Одновременно в камеру небольшим компрессором, соединенным шлангом с патрубком, вдувается воздух.
Воздух способствует попаданию дыма через трубку — дымоход в камеру с размещенными продуктами. Такое устройство называется эжектором. Температура дыма на выходе небольшая, так как огонь разгорается медленно, и продукт готовится практически в идеальных условиях.
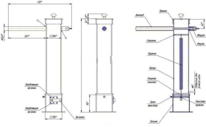
Устройство дымогенератора для холодного копчения, который можно сделать своими руками
- На рисунке отмечена камера (1), в которой на подвесах размещают продукты для последующей обработки.
- Древесные опилки (3) засыпают в подходящую по размеру топку, изготовленную из достаточно прочного жаропрочного материала.
- Регулировка тяги здесь организована с применением поддувала (7).
- Компрессор (6) подаёт свежий воздух через гибкий шланг (5) и патрубок (4).
- Ёмкость закрыта сверху крышкой.
- Поэтому дым направляется по соединительной трубке (2) в коптильную камеру.
Эжектор
Специалистырекомендуют применять первый вариант. При верхнем размещении эжектора можно пользоваться следующими преимуществами:
- увеличивается объём области сгорания. Уменьшается вероятность затухания твёрдого топлива;
- в таком варианте проще обеспечить медленное тление. Следовательно, реже придётся пополнять запас дров;
- верхнее расположение эжектора с принудительной подачей воздуха создаёт достаточную тягу. Пригодится дополнительная фильтрация дыма слоем засыпки;
- нижнее – способствует попаданию крупных частиц в дымоход, заставляет увеличивать его длину для снижения рабочей температуры в коптильной камере;
- близость к нагретой области уменьшает срок службы патрубка, увеличивает риски повреждения сварных соединений.
Компрессор для дымогенератора коптильни
Такое подключение компрессора минимизирует тепловое воздействие на эжектор, что продлевает срок службы узла. Одновременно обеспечивается достаточная скорость воздушного потока для подачи дыма в зону обработки продуктов питания.
Коптильная камера
На рисунке приведён пример фабричной камеры для копчения. Несложно догадаться, что подобные функции вполне способен выполнить старый холодильник. При поддержании оптимального температурного режима компоненты его конструкции не будут повреждены.
Модернизация
Описанная выше конструкция полностью работоспособна. Но она имеет много недостатков, не очень удобна. По результатам ее использования сделаны доработки и усовершенствования.
Регулируемая тяга
Один из главных недостатков описанной конструкции — плохая регулировка интенсивности горения. Ее можно немного изменить, регулируя производительность компрессора. В конструкцию можно добавить регулируемое поддувало. Его можно сделать по принципу шибера:
- В нижней части корпуса (выше места крепления стеки) приварить кусок круглой трубы длиной 10-15 см.
- Просверлить два отверстия, которые располагаются строго одно напротив другого.
- Взять пруток, которых проходит в эти отверстия. Его длина на 20 см больше диаметра трубы.
- Из листа металла (2-3 мм толщины) вырезать круг. Его диаметр чуть меньше внутреннего диаметра трубы.
- Из прутка сделать «ручку» (согнуть ее).
- Вставить в отверстия ручку, приварить вырезанный круг.
Зольник
Еще один недостаток — через сетку просыпается зола. Можно ставить дымогенератор на металлическую пластину, но можно сделать зольник. Кстати, шибер можно сделать в зольнике. Это будет правильнее, так как подсос воздуха можно будет почти перекрыть, чего с шибером в корпусе не добьешься — воздух поступает через сетку.
Зольник делают из отрезка трубы чуть большего сечения, чем труба на корпусе. Если такой нет, придется сварить. К куску трубы приваривается дно, к корпусу — по периметру — тонкая полоса металла. Корпус вставляется в зольник (ножки привариваются также к нему).
Сбор конденсата
При работе дымогенератора для холодного копчения происходит выделение конденсата. Это осложняет жизнь, особенно если на улице температура невысокая. Решить проблему можно сделав сборник для конденсата. Для этого:
- выходную трубку дымогенератора опускаем вниз,
- в нижней точке устанавливаем емкость для конденсата, приварив к ней две трубы — одну напротив другой;
- с противоположной стороны труба снова поднимается вверх и входит в коптильный шкаф.
При таком устройстве значительная часть конденсата оказывается в емкости. Проблема стоит не так остро.
Как устроить дымогенератор для коптильни холодного копчения своими руками
Варианты по изготовлению различны, но заслуживают внимания следующие советы:
В качестве топки применяется относительно герметичная ёмкость, где при небольшом токе воздуха происходит процесс тления (обычно это измельчённые отходы древесины в виде щепок или опилок). Предусматривают вторую дверцу или заслонку, устроенную специально для регуляции воздушного потока. Нужно постараться создать такой ток воздуха, от которого не горит большой огонь, но при этом его должно быть достаточно для медленного тления топлива и создания дымоходной тяги.
В другом варианте дымогенератора устраивается двухкамерная топка, где под жерлом печи разжигается огонь в открытых условиях. На металлическом листе помещается топливный материал, тот же, что и в обычных случаях. Для образования тяги и служит верхняя коптильня, предназначенная только для дыма. Она наполняется дымом, внутри слоями-ярусами располагаются продукты, которые обдаются копчёным ароматом. Способ образования дыма не влияет на длительность процесса: чтобы получить качественный продукт, следует постоянно контролировать весь процесс копчения.
Копчение относится к энергоёмким процессам, расход топлива достаточный. Можно сделать дымогенератор на электрическом или газовом топливе, но тогда расходы на оплату услуг поставляющих компаний увеличатся.
Коптильня ставится на кирпичное основание, которое заглубляется в землю: если не использовать для установки кирпичи, то от влажности почвы могут возникнуть проблемы. Чертежи по устройству основания можно выполнить своими руками после расчёта ширины и длины камеры. Габариты основания должны быть на 20 см шире камеры с каждой стороны.
Место должно быть ровным и удобным для работы, его размещают на открытом пространстве без высоких кустов и деревьев. После выбора металлической ёмкости для камеры сгорания, её накрывают куском металла для препятствия выхода дыма. Дымоходный канал устраивается на уровне выше коптильной камеры. Для одинакового распределения и выброса вредных компонентов после сгорания топлива вход делают не менее 20 см.
Самодельную коптильню варят из решётки, на которой вешают крюки для продуктов. Под решёткой прокладывают поддон небольшой высоты, при этом делают щели для вредных дымовых газов между стенками. Сверху всю конструкцию накрывают влажным материалом, например, брезентом, чтобы уберечь продукты от загрязнения. Температуру в камере, сделанной своими руками, измеряют обычным термометром, который крепят на стенках. Для устройства дымогенератора не требуется дорогостоящих строительных материалов, используются предметы, которые в большинстве случаев всегда есть под руками.
Продукты, полученные способом холодного копчения, подлежат длительному хранению. Из-за отсутствия термической обработки в них сохраняются многие питательные вещества. Если у хозяина нет желания делать генератор своими руками, то его приобретают в магазине, благо в продаже есть множество моделей различных размеров.
Использование переносного дымогенератора для коптильни
Из-за больших габаритов самодельные устройства имеют ограниченную зону применения. В некоторых случаях требуется переносная установка, которая берётся с собой на дачу или в другое место. Для таких случаев разработан генератор дыма для коптильной камеры. Устройство позволяет подсоединиться к камере и за небольшой промежуток времени создать большое количество густого дыма. Так как агрегат относится к экономичным устройствам, то эффективная работа устройства организуется с применением небольшого количества топливных ресурсов.
Его принципиальное отличие от стационарных приборов заключается в том, что нужна принудительная подача воздушного потока для получения области высокого давления и охлаждения.
Виды самодельных генераторов
Схемы самодельных дымогенераторов могут немного отличаться, но все они объединены общим устройством. Они включают камеру, в которой происходит процесс пиролиза, расположен источник нагрева, трубопровод для дыма и система охлаждения дыма. Изготовить устройство можно с применением подручных материалов. Можно сделать дымогенератор из огнетушителя, электроплитки или аквариумного компрессора. Рассмотрим эти и другие идеи подробнее.
Дымогенератор из электроплитки
Если идея домашней копчёной колбаски посетила вас только что, а заранее к ней вы никак не готовились, можно найти простой и быстрый способ: сделать его из электрической плитки. Все остальные детали можно поискать в сарае или гараже: бочка без дна или кусок жестяной трубы, кусок проволочной сетки, лист фанеры и щепа.
Практически на любой даче есть электроплитка, она и станет частью коптильни
Устраивать импровизированную коптильню лучше на улице, потом дома будет трудно избавиться от ароматов, которые пропитают все вещи. Устанавливают плитку в месте, до которого дотянется удлинитель. На электроплитку ставят бочку, в неё насыпают щепу. На 2/3 высоты бочка протыкается двумя арматурными штырями крест-накрест, на них укладывается сетка. Здесь будут подвешены ваши продукты. Сверху бочку накрывают листом фанеры или железа. Коптильня готова. Осталось только отрегулировать плитку на минимальную температуру, чтобы тлела щепа, и время от времени подкидывать в бочку свежий материал для пиролиза.
Процесс копчения с таким устройством не очень удобен тем, что нужно постоянно контролировать ситуацию, поднимать бочку для регулировки температуры, вынимать продукты для досыпки щепы
Такое устройство нельзя назвать правильным дымогенератором для холодного копчения, но для временного использования идея вполне подойдёт.
Генератор для коптильни из огнетушителя
Отличная идея для самодельного генератора дыма – использовать старый огнетушитель. У него нужно отрезать верхушку, она будет потом использоваться как крышка. Можно даже не убирать рычаг, он станет ручкой. Ниже среза в корпусе просверливаются два отверстия для доступа воздуха и выхода дыма.
Таким образом, вы получите генератор с верхним эжектором. Преимущество использования огнетушителя заключается в том, что он герметичен и прочен, имеет подходящий размер. Такая коптилка холодного копчения с дымогенератором, сделанная своими руками, может беспрерывно работать 10−12 часов.
Как сделать дымогенератор из огнетушителя в видеосюжете:
Как использовать аквариумный компрессор для дымогенератора
Мы уже говорили о том, что для работы небольшого генератора дыма можно использовать маломощный аквариумный компрессор. Для этой цели потребуется активный компрессор, то есть тот, который устанавливается снаружи аквариума. Погружные аквариумные фильтры для дымогенератора не подходят.
Такой прибор вполне сможет обслужить небольшую коптильню объёмом 15−20 литров. Он обеспечит достаточную подачу дыма. Лучше, если устройство оснащено регулировкой мощности подачи воздуха. Подсоединить компрессор своими руками для дымогенартора несложно: если у него есть два выхода для воздуха, нужно объединить подачу в один канал и вставить шланг в штуцер для подачи воздуха в эжекторе.
Подобная система может работать хоть круглосуточно, помпа потребляет мало электроэнергии
Можно пойти и другим путём: использовать вентилятор для дымогенератора. Для этой цели подойдёт компьютерный кулер, он обеспечит необходимое нагнетание воздуха. Подробности работы в этом видео:
Печка-дымогенератор для коптильни
Для коптильни большого объёма потребуется полноценная печь. Печку дымогенератора для холодной коптильни несложно сделать своими руками: это элементарная буржуйка с двумя уровнями для топлива: нижний− для дров и верхний – для щепы. В нижнюю часть закладывают пеллеты, дрова или ставят портативную газовую плитку, которая будет нагревать верхнюю часть с опилками. От верхней части идёт труба − дымопровод, от нижней – обычная вытяжка, как для печи.
Для понижения температуры дыма трубопровод охлаждают, закапывая в землю или делая водяную «рубашку». Чтобы дым поступал в коптильню, трубу располагают с наклоном в сторону печки
Разные проекты и схемы для создания дымогенератора холодного копчения своими руками
Как сделать своими руками простейший дымогенератор из электроплитки

Регулятор мощности позволяет установить оптимальный режим нагрева. В старую кастрюльку засыпают щепки – получается самодельный дымогенератор для холодного копчения без компрессора.

В стенки вворачивают крепёжные детали, фиксируют сетку. На крючках подвешивают продукты для обработки. После запуска закрывают верхнее отверстие подходящим листом из жаропрочного материала.
К сведению! Бочку очищают перед применением от краски, иных загрязнений. Частицы ржавчины, в отличие от продуктов горения нефтехимических соединений, не являются опасными.
Такой дымогенератор для холодного копчения способен выполнять свои функции на одной загрузке дров 4−6 часов, не более. Он потребляет электроэнергию. В этом варианте сложно обеспечить оптимальный температурный режим. Затруднена оперативная регулировка производительности. Несмотря на существенные недостатки, привлекает дешевизна и простота конструкции. На дачном участке можно установить работоспособное оборудование при соответствующей подготовке буквально за 20−30 минут.
Дымогенератор из огнетушителя

Для изготовления такого генератора дыма своими руками надо найти подходящий огнетушитель с металлическим корпусом. Изделие с истёкшим сроком годности можно получить в собственность совершенно бесплатно.

После удаления порошка и промывки на высоте 40−60 мм от дна сверлят 2−3 отверстия диаметром 8−12 мм. Засыпают древесные опилки. В штатную крышку вворачивают тройник с патрубками.

Из этой техники удалён вышедший из строя нагреватель. Ступенчатый переключатель позволяет использовать только два режима скорости. Подключение – к сети 220 V.
Как применить аквариумный компрессор для создания дымогенератора

На фото отмечен стальной дымоход с тройником (1). Аквариумный компрессор (3) нагнетает воздух через гибкий шланг (2). В топочную камеру (5) засыпают опилки. Процесс тления активизируют пламенем газовой горелки (4). В этом варианте «слабое звено» – это симпатичная баночка из-под растворимого кофе. Самая крупная тара не вмещает более 250 г, поэтому рабочий объём получается маленький. Приходится часто пополнять запас опилок. Тонкие стенки деформируются открытым пламенем, быстро приходят в негодность.

Печка-дымогенератор для холодного копчения

Перечисленные выше примеры демонстрировали особенности разборных конструкций. При необходимости любую из них можно разобрать на составные части, переместить на склад для длительного хранения. Однако если есть свободное место на дачном участке, можно установить стационарную коптилку холодного копчения с дымогенератором своими руками. При правильном расчёте можно обеспечить высокую производительность обработки промышленного уровня.







































