Как удалить анкер
В анкер обычно вставляется не винт или болт, а шпилька (тот же болт, только без шляпки) или крючок. В рамные анкеры вкручивается болт, на нижнем конце которого с помощью резьбы держится распирающий элемент.
В общем случае анкер вытаскивается пассатижами:
- Снимите гайку.
- Ударьте по шпильке молотком и протолкните её вглубь отверстия.
- Захватите гильзу пассатижами и выньте.
- Выкрутите болт.
- Пассатижами или плоскогубцами демонтируйте втулку анкера.
- Вставьте болт в освободившееся отверстие и проверните по часовой стрелке, чтобы насадить клин на болт.
- Выньте оба элемента.

Если болт заржавел
Если вынуть болт не получается потому, что он окислился, стоит попробовать его реанимировать. Для этого детали хорошо смачивают преобразователем ржавчины, керосином или WD-40. Оставляют на время, указанное на упаковке, либо дольше (до полусуток). За это время окислы должны уйти. Почистив болт, нужно попытаться снять гайку либо выкрутить болт.
Если болт сломан или у него сорвана шлица
Если закручивать болт, винт или шуруп слишком быстро или неподходящей отвёрткой, легко сорвать ему пазы. Реже, но случается, что головку срывает вовсе либо частично — в частности, при неудачной попытке выдернуть рамный анкер, не сняв конический «якорь».

Чтобы вывернуть сломанный саморез или болт, его рассверливают и вгоняют в него чопик (экстрактор: клиновидный винт с левой резьбой), зафиксированный в дрели, шуруповёрте или пассатижах. Затем вся конструкция проворачивается против часовой стрелки.
Если гильза установлена неправильно
Самая частая проблема с анкерными дюбелями — их невозможно зацепить за край ни плоскогубцами, ни даже узкогубцами. Чтобы этого избежать, достаточно правильно установить анкер: оставив по крайней мере 2 мм выше уровня стены. Этой длины достаточно, чтобы подцепить гильзу, но она легко закрывается штукатуркой или любым профилем.

Что делать, если гильзу зацепить невозможно:
- Вкрутить саморез между гильзой и шпилькой и вытягивать за него, по возможности прихватив и шпильку.
- Вынуть либо протолкнуть шпильку / болт, вогнать саморез или другой инструмент между стеной и гильзой, разорвав и загнув углом край анкера. После этого тянуть за получившийся угол металла.
- Рассверлить верхний слой стены вокруг дюбеля, чтобы освободить край гильзы.
В крайнем случае анкер разрезают циркулярной пилой и вынимают его части по отдельности.
Как правило, металлические дюбели и анкеры устанавливаются там, где их демонтаж не потребуется, а нагрузка будет значительной. В ряде случаев имеет смысл не вытаскивать гильзу, а забить её глубже и закрыть цементным или др. раствором либо пластиковой / деревянной чуркой. В любом случае, нерешаемых задач не бывает: дюбель или анкер практически всегда извлекается, стоит приложить терпение и усилие.
Способы установки
Металлические трубы применяемые в качестве опорных элементов ограждения
Опоры для заборов делают из металла, кирпича, бетона. Самый распространенный вариант – металлические столбы, которые изготавливаются из профилированных труб разного диаметра и длины. Элементы из металла не требуют сложного монтажа, и на них легко крепятся секции забора из самых различных материалов.
Цена таких столбов очень демократична, а долговечность делает их использование довольно привлекательным.
Чтобы выяснить, как забить столбы для забора, нужно ознакомиться с существующими способами, и сориентироваться, какой из них наиболее подходящий. Опоры устанавливают тремя способами: забиванием, бетонированием, забутовкой. Самым простым и доступным является метод обычного забивания труб в грунт.
Как вытащить старый дюбель из стены, когда он сломался?
В любой работе случается брак. При монтаже могут ломаться шурупы, стираться насечки на их головке и раскалываться пластик втулки. Если шуруп сломался не полностью, то вывернуть его остатки можно при помощи небольшой хитрости. Для этого берут реверсивную дрель, зажимают вместо сверла в патрон остатки шурупа, торчащего из стены, и включают обратный ход. Если осколок не позволяет этого сделать, то понадобятся пассатижи с большим рычагом или клещи. Эти инструменты обладают большим давлением в рабочей части, что позволит ухватить самый трудный край.
Этот же инструмент поможет достать и пластиковую часть, застрявшую в стене. Нужно аккуратно поддеть верхнюю юбку вкладыша и потянуть его, стараюсь не оборвать. Так как вытащить сломанный дюбель из стены с кафельным покрытием, не повредив его, бывает затруднительно, то можно рассмотреть вариант его частичного демонтажа.
Какие можно сделать самоделки из бензопилы «Дружба» и других приборов
Даже без использования дополнительных деталей бензопила способна выполнять большой спектр задач. Если к классической конструкции приобрести дополнительные насадки, получится расширить возможности использования прибора в хозяйстве и получить такие устройства:

Для бензопилы можно приобрести специальные насадки или сделать с ее применением нужный инструмент
- снегоуборщик;
- кусторез;
- насос для перекачивания воды;
- бензорез;
- окариватель.
Некоторые умельцы, вооружившись элементарными знаниями по механике, создают дополнительные приспособления своими руками для бензопил, которые позволяют значительно расширить границы применения инструмента. Чтобы его переделать, необходимо понимать принцип работы универсального моторного привода, который легко использовать для изготовления других устройств. Таким образом, взяв мотор от бензопилы, получится создать такие приборы:
- ледобур или буроям;
- мотор для лодки;
- машинку или велосипед с мотором;
- газонокосилку;
- генератор.
Причиной популярности самоделок из бензопил «Дружба-4», «Штиль» или «Урал» является большое количество преимуществ:
- мощный двигатель;
- небольшая масса и компактные размеры;
- возможность использования в экстремальных условиях.

Как правило, самоделки делают из бензопил «Урал», «Дружба», «Штиль»
Процесс забивание дюбеля
При строительстве и ремонте наиболее востребован дюбель с саморезом или дюбель-гвоздь, их можно крепить в разных материалах. Чтобы правильно зафиксировать их в стене, обеспечив качественное крепление, необходимо соблюдать определенные условия. Только на первый взгляд кажется, что забить дюбеля в стену очень просто. Чтобы не повредить материал, нужно соблюдать правило, согласно которому корпус дюбеля не должен выступать за край стеновой поверхности.
Сверлится отверстие
В стене перфоратором проделывается отверстие, при этом диаметр сверла должен совпадать с размером втулки дюбеля в сечении
Важно, чтобы глубина отверстия была на 0,5 см больше длины дюбеля.
После того как проделано отверстие, его необходимо прочистить подручным длинным предметом. Чтобы избавиться от пыли, отверстие можно продуть воздухом или, например, прочистить пылесосом.
Затем в отверстие необходимо вставить корпус дюбеля и забить его молотком до того момента, когда край детали станет совпадать с поверхностью стены.
После этого саморез завинчивается в пластмассовую основу практически до упора
В варианте с гвоздем, последний забивается молотком. Сердечник после вхождения в тело внешней оболочки детали окажет распирающее воздействие на основу в отверстии, при этом дюбель уже вытащить будет практически невозможно. Чтобы установить дюбель качественно, нужно соблюдать все необходимые правила.
Дюбель в отверстии
Забивка с помощью кувалды
Забивка опоры ограждения кувалдой
Невысокие ограждения устанавливаются на небольших столбах (до 1,5 м длиной). Чаще для обустройства таких конструкций применяется кувалда. Для забивания используют прокладку из дерева между трубой и кувалдой. Человек, забивающий опору таким способом, должен располагаться над верхним краем опоры, чтобы иметь возможность размаха и сильного удара.
Прием, конечно, дешевый, но одновременно и трудоемкий, требующий больших физических усилий. При использовании кувалды есть риск перекоса столбов, поэтому рекомендуется выполнять эти работы в паре. Один держит трубу вертикально, второй забивает. Причем вертикальность вбитых опорных элементов следует проверять уровнем.
Основные приспособления для бензопилы, получившие популярность
Если приобрести специальные насадки на инструмент, то установить их будет чрезвычайно просто, для этого не потребуется ничего переделывать или разбирать корпус инструмента. Все готовые приспособления рассчитаны именно для установки на бензопилу. Другим важным преимуществом приобретения именно бензопилы считается ее автономность. Это объясняется тем, что все электрические устройства требуют наличия розетки 220 В. Применяя бензопилу, получится использовать самоделки в полевых условиях, будь это дрель, ледобур или кородер.
Установленная своими руками насадка-болгарка на бензопилу позволяет эксплуатировать технику не только в качестве бензореза, но и как угловую шлифовальную машинку. Насадка связывается с устройством посредством специальной шпильки, а вращаться начинает с помощью ремня от шкива, закрепленного на вал ведущей звездочки. Таким образом, приспособление устанавливают вместо пильной шины
Важно правильно подобрать диаметр круга насадки, для этого нужно предварительно изучить инструкцию бензопилы «Дружба» или другой техники, используемой для изготовления полезного прибора

Кородер является одной из самых популярных насадок для бензопилы
Другая распространенная среди пользователей насадка ‒ кородер, применяемая для срезания коры с деревьев. Также насадка популярна у столяров, потому как с ее помощью легко очистить от коры, сучков и наростов необработанный лес. Некоторые используют насадку, чтобы создать продольные или поперечные пазы на брусе. В основном выделяют два типа кородеров:
- Барабанные. Главная область применения – снятие коры, второе название – окариватель.
- Дисковые. Используются для создания разного рода углублений.
В продаже встречается несколько насадок, отличающихся шириной захвата, чаще это 80 и 100 мм. В случае затупления ножей есть возможность вторичной заточки. Если ножи полностью вышли из строя, лучше приобрести новый комплект производителя. Сама насадка представляет собой фрезу или барабан, закрепленный в узле подшипника. Приведение в действие осуществляется за счет ременной передачи, а скорость вращения регулируется силой нажатия на ручку акселератора. Также на скорость влияет и диаметр шкива: чем он больше, тем выше скорость. Шпильки для установки насадки идут в комплекте.
Как удалить анкер
В анкер обычно вставляется не винт или болт, а шпилька (тот же болт, только без шляпки) или крючок. В рамные анкеры вкручивается болт, на нижнем конце которого с помощью резьбы держится распирающий элемент.
В общем случае анкер вытаскивается пассатижами:
- Снимите гайку.
- Ударьте по шпильке молотком и протолкните её вглубь отверстия.
- Захватите гильзу пассатижами и выньте.
- Выкрутите болт.
- Пассатижами или плоскогубцами демонтируйте втулку анкера.
- Вставьте болт в освободившееся отверстие и проверните по часовой стрелке, чтобы насадить клин на болт.
- Выньте оба элемента.

Если болт заржавел
Если вынуть болт не получается потому, что он окислился, стоит попробовать его реанимировать. Для этого детали хорошо смачивают преобразователем ржавчины, керосином или WD-40. Оставляют на время, указанное на упаковке, либо дольше (до полусуток). За это время окислы должны уйти. Почистив болт, нужно попытаться снять гайку либо выкрутить болт.
Если болт сломан или у него сорвана шлица
Если закручивать болт, винт или шуруп слишком быстро или неподходящей отвёрткой, легко сорвать ему пазы. Реже, но случается, что головку срывает вовсе либо частично — в частности, при неудачной попытке выдернуть рамный анкер, не сняв конический «якорь».
Как забить дюбель-гвоздь при помощи перфоратора или дрели
1) Нанести разметку на стену, предварительно все точно просчитав и отмеряв.
2) Высверлить в стене отверстие нужной длины, с применением победитового сверла диаметра, точно соответствующего дюбель-гвоздю.
3) Тщательно очистить отверстие обычным бытовым пылесосом.
4) Если пластмассовой манжеты нет, часто используют деревянные пробки (чопики): сделать пробку нужно точного размера по диаметру отверстия, лучше с четырьмя гранями и длины, чуть превышающей длины отверстия. Пробку загоняют в отверстие вместо манжеты из пластика до дна, излишки отпиливают ножовкой или откусывают клещами. Если есть пластиковая манжета, забивают ее.
5) Далее нужно аккуратно забить гвоздь в манжету или центр деревянной пробки, направляя его под правильным углом.
Дополнительные вопросы по теме
Одним из важных этапов забивания гвоздя является выбор молотка. Для забивания дюбель-гвоздя бел дрели или перфоратора используют молоток МСТ-1 с рукояткой длиной 25-28 сантиметров и рабочей частью 9 сантиметров, весом в 250 граммов. Инструмент применяется в работе с отбойными гвоздями длиной максимум 40 миллиметров.
Чтобы вбить более крупный крепеж, лучше взять молоток МСТ-2 с рукоятью 30-32 сантиметров и рабочей областью 11 сантиметров и весом в полкилограмма. МСТ-3 актуален для тех же задач, но он весит значительно больше. Для забивания дюбель-гвоздей также используют МСТ-4 с рукоятью размером 35-37 сантиметров, областью рабочей 13 сантиметров и весом в 1 килограмм.

Перед забиванием гвоздя с использованием дрели или перфоратора нужно очень точно выбрать место крепежа. В кирпиче не крепят в швах, нельзя сверлить в местах пролегания металлической арматуры, электрической проводки. Сверлить начинают на малых оборотах, постепенно наращивая в случае необходимости. Если же отверстие вышло большего диаметра, можно залить его монтажной пеной, забить дюбель туда, выждать время высыхания, вбить гвоздь и удалить остатки пены.
Ручной генератор
Для создания генератора переменного тока из сломанного шуруповерта следует учесть, что мотор и редуктор должны быть в рабочем состоянии. Такое устройство подойдет в качестве альтернативного источника питания при выездах на природу или внеплановом отключении света.
Из шуруповерта с рабочим напряжением в 18 и более вольт при крутящем моменте редуктора от 150 оборотов в минуту можно добыть 6-8 В. Этого достаточно для того, чтобы подзарядить мобильный телефон или фонарик с USB портом.
Электрогенератор из мотора с USB разъемом
Для того, чтобы сделать электрогенератор из старого шуруповерта требуется:
- отсоединить аккумулятор и разобрать корпус;
- отсоединить от мотора кнопку и силовой элемент, чтобы они не мешали передаче тока;
- припаять на их место параллельный диодный мост;
- диодный мост должен обладать электролитическим конденсатором на 220 мФ и диодами Шоттки;
- на другом конце диодного моста рекомендуется припаять USB порт, который будет использоваться в качестве разъема для подзарядки;
Пример ручки для генератора
изготовить из любой удобной г-образной детали ручку и вставить ее в патрон.
В некоторых случаях можно обойтись без пайки. Для этого необходимо:
- присоединить к клеммам внутри корпуса два провода с зажимами («крокодильчиками»);
- соблюдая правильную полярность подвести питание на лампочку или USB порт.
Данный способ более прост в исполнении, но повышается вероятность повредить то устройство, которое будет от него заряжаться, а также уменьшает коэффициент полезного действия (КПД) такой самоделки.
В этом видео показан пример сборки генератора из старого шуруповерта
Пошаговое изготовление бура
На металлическом листе рисуем окружность, отмечая центр. Это будет лезвие. Далее, эту окружность нужно вырезать при помощи болгарки, а затем нанести линию разреза, которая проходит по линии диаметра. Затем наносим линию выреза, которая должна соответствовать окружности воротка. Получившийся диск нужно разделить на две части и прорезать отверстия для воротков.
На конце трубы, которая и будет выступать в роли воротка, болгаркой прорезаем четыре продольных линии, 3−4 см в длину. После этого из них нужно сформировать остриё при помощи молотка, при этом нужно собрать надпилы у самого центра трубы. Полученное остриё нужно обработать сваркой и сделать так, чтобы вороток в процессе работы не забивался почвой.
Следующим этапом будет соединение воротка с диском при помощи сварки. Это делается на расстоянии между ними в 5 см и под углом к плоскости вращения в 20 градусов.
Далее приступаем к трубе-удлинителю, которая должна быть оснащена рукояткой. Эту деталь нужно приварить буквой «Т» и обязательно приварить к ней усилители в виде «косынки». Заготовка продевается в вороток, и сквозь них проделывается отверстие, чтобы можно было скрепить детали шпилькой. Таких отверстий нужно сделать несколько штук для того, чтобы иметь возможность регулировать длину изделия.
Работа заканчивается затачиванием лезвий. Кромку фрезы нужно обработать таким образом, чтобы при вращении остриё лезвия было направлено вниз.
Защитное покрытие
Во избежание возникновения ржавчины на деталях самодельного бура для столбов нужно тщательно прочистить их наждачной бумагой и обработать грунтовкой и фосфатирующим раствором. После такой обработки готовое изделие можно красить.
При эксплуатации устройства нужно после каждого применения разбирать его и чистить все соединения от пыли и грязи, а также покрывать их специальной смазкой, отталкивающей воду. Не стоит упускать этот момент, так как правильный уход за инструментом станет хорошей профилактикой заклинивания болтов и позволит ему работать бесперебойно очень долгое время.
Для строительства собственными силами
Тема строительства или ремонта, наверное, волнует каждого. И, естественно, каждый, кто им занимается, желает закончить его побыстрее с минимальными финансовыми затратами. Поэтому, если вы хотите сэкономить, можно некоторые материалы для строительства изготовить собственными силами. Например, это могут быть стеновые СИП-панели или такой полезный инструмент, как виброплита, необходимость в которой часто возникает у многих владельцев приусадебного участка.
Самодельные СИП-панели
Для их изготовления нужно приготовить ровную жесткую площадку. Уложив на нее лист ОСП толщиной 10−12 мм резиновым шпателем с зубцами нанести на него клей.
Затем на клей уложить листы пенопласта марки 25−30. После этого сверху на уложенный пенопласт, так же, как и на нижнюю плиту ОСП, наносится клеевая масса, а сверху укладывается второй лист ОСП.
Если изготавливается одновременно несколько плит, укладываемых стопкой, работу следует производить быстро, пока клей не застынет. Обычно таким способом можно заготовить не больше 4−5 панелей за один раз.
После заготовки для сформированных плит нужно создать давление с помощью пресса. Так как в домашних условиях, естественно, гидравлического пресса нет, его можно заменить толстым фанерным листом, уложенным на заготовленные СИП-плиты по всей плоскости и пригруженным на 2−3 часа, например, несколькими мешками с цементом, песком или другим грузом. Можно воспользоваться даже легковым автомобилем, заехав на фанерный лист по заранее сделанной эстакаде.
Изготовление виброплиты
Чтобы изготовить самодельную виброплиту, нужно будет приготовить:
- Электрический двигатель с эксцентриком марки ИВ-98Е, который является основной деталью виброплиты.
- Стальной лист, толщиной не менее 8 мм размером 450х800 мм. Его можно заказать на любой металлобазе.
- Два куска швеллера длинной не более 400 мм.
- Дюймовую трубу для рукоятки и две резиновые втулки для ее крепления.
- Из инструментов понадобится аппарат для сварки, болгарка и набор гаечных ключей.
С узких сторон плиты, отступив от краев по 80−100 мм, сделать надрез болгаркой примерно на глубину около 5 мм. После этого загнуть края в сторону надреза под углом примерно 25и приварить их сваркой. Загибы нужны для того, чтобы виброплита не погружалась в уплотняемый ею материал и свободно перемещалась по его поверхности.
Затем поперек плиты на определенном расстоянии, рассчитанном под крепление электродвигателя, привариваются два швеллера полками вниз. Через заранее просверленные отверстия в швеллере, с помощью болтов М10, к ним крепится электровибратор.
Рукоятка, изготовленная из трубы, крепится к вибратору через мягкие резиновые втулки, которые можно купить в магазине автозапчастей или в строительном магазине в отделе крепежных деталей.
Таким образом, можно своими руками изготовить массу полезных в хозяйстве вещей, потратив на это лишь часть тех денег, что пришлось бы заплатить при покупке готового изделия. Надо лишь приложить некоторые усилия и обладать определенными умениями.
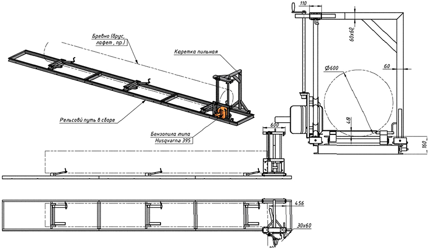
Как выполнить лебедку и пилораму из бензопилы своими руками
Самоделки из «Урала» часто помогают и в строительстве. Так, при возведении зданий из цельного леса приходится распускать бревна на брус. Пилорама из бензопилы «Урал» дает возможность выполнить это действие максимально быстро, аккуратно, сохраняя точность реза. Главное преимущество – отсутствие необходимости выполнять какие-либо сложные переделки. Приспособление просто требуется надежно закрепить в самодельной раме, которая может быть изготовлена из металлических уголков или профильных труб. Бревно для обработки затем уже укладывается на подготовленные направляющие.

Схема изготовления пилорамы из бензопилы своими руками
Создавать чертежи пилорамы из бензопилы своими руками не придется, потому как в сети доступно большое количество идей, подходящих даже для человека без опыта.
Безопасность использования конструкции обеспечивается тем, что не нужно самостоятельно передвигать бревно. Для этой цели служит каретка с пилой, которая, в зависимости от толщины бревна, закрепляется на необходимой высоте. После включения рама перемещается точно, а срез остается аккуратным и получается ровным. Можно эксплуатировать устройство не только для цельного бруса, но и для распиловки доски, с целью заготовки дров.
Самодельная лебедка также станет хорошим помощником при строительстве, потому как с ее помощью получится легко поднимать грузы на высоту, перемещать спиленное дерево. Кроме того, применяя лебедку, удастся вытащить застрявшую машину или вытянуть из воды на берег катер. Эффективность работы будет зависеть от передаточного числа редуктора, в некоторых моделях показатель может достигать 1,5 т.

Пилорама из бензопилы позволит легко и быстро превратить бревна в брус
Чтобы прибором было удобно пользоваться, потребуется выполнить прочную раму, используя сварочные работы. На раме следует прочно закрепить мотор, редуктор и барабан с системой торможения. Для фиксации рамы на корпусе следует предусмотреть отверстия и проушины, через которые можно будет установить прибор на любую поверхность.
Делаем садовый бур
Садовый бур — самая простая, но эффективная конструкция. Он состоит из:
Это базисная конструкция, а к ней есть множество доработок. Но давайте сначала о том, из чего можно сделать землебур.
Материалы
Как уже говорили, стержень чаще всего делают из трубы круглого или квадратного сечения. Диаметр — от 3/4′ до 1,5′, профилированную трубу можно брать от 20*20 мм до 35*35 мм.
Ножи-лопасти делать можно из:
Проще делать лопасти из пильного диска. В этом случае режущие кромки уже готовы. Можно будет дополнительно заточить боковые грани, чтобы грунт резался легче.
Пику-сверло делают из разных материалов — очень много ее конструкций. Делают просто заточенный стержень. Тогда нужен отрезок прутка большого диаметра. Второй вариант — из полосы стали сделать что-то типа сверла. И еще — комбинация этих двух.
Пика — один из вариантов наконечника
И напоследок — о ручке. Удобнее, если она сделана из круглой трубы. Ее диаметр можно подобрать по охвату ладоней. Основное требование — вам должно быть удобно.
Ножи и способ из крепления
В первую очередь надо решить, делаете вы бур своими руками со съемными или стационарными лопастями. Если лопасти съемные, на одном из концов стержня привариваете полочки из толстой стали. Полочки делают под наклоном — так, чтобы плоскости ножей были разведены под углом 25-30°.
После того, как полки приварили, в них делают два-три отверстия — под крепеж. Потом такие же отверстия надо будет делать в лопастях, а устанавливать их на болты солидного диаметра.
На один стержень можно иметь несколько комплектов режущих лопастей — для шурфов разных диаметров
В самих дисках по центру придется вырезать отверстия — чтобы они плотнее прилегали к стержню, но эта операция требуется и при монолитном варианте — с приваренными лопастями.
Листовая сталь
Если лопасти собираетесь делать из листовой стали, вырезаете из бумаги шаблон, по нему — круг из стали. В центре сверлите отверстие — в него надо будет вставить и приварить стержень. Круг или квадрат — в зависимости от выбранного стержня. Размеры отверстия — немного больше, чем габариты стержня.
Разводить края надо тоже градусов на 25-30°. В этом случае эффективность бурения будет максимальной. Если работать будете на плотных грунтах (глина, суглинки с преобладанием глины), лопасти под нагрузкой может сводить. Чтобы этого избежать, добавляют из уголка или толстой полосы стали упоры.
Гнутся лопасти из-за того, что сталь используется незакаленная, но ее в листе найти практически невозможно, а если и можно, то ее вряд ли получится согнуть.
Из пильного диска
Если у вас есть старый распилочный диск подходящего диаметра — вы нашли почти идеальный вариант. В них сталь используется закаленная, а она — упругая и прочная. Но такой диск согнуть не получится, потому его распиливают пополам и эти половинки разводят под требуемым углом.
Такой самодельный бур для земляных работ показывает довольно высокую производительность. Даже б/у диски имеют хорошо наточенную кромку. А чтобы бурение шло еще легче, бур своими руками затачивают еще и по бокам.
Модификации
В плотных грунтах бывает сложно большими лопастями резать грунт. В таком случае на стержень приваривают несколько лезвий разного размера. Снизу, возле пики, наваривают самые маленькие, выше, отступив несколько сантиметров — большие. Таких ярусов может быть три, максимум — четыре. Вся режущая часть не должна быть больше 50 см, иначе работать физически очень сложно.
Если бур нужен для неглубоких ям — для установки столбов и т.п., то такая конструкция оптимальна — она имеет относительно небольшой вес, работать с ней легко. Процесс работы такой — опустили в лунку, провернули несколько раз — вытащили, высыпали застрявший между лопастями грунт. Но если пробурить необходимо глубокие шурфы, таскать с глубины небольшое количество грунта замучаешься. Для таких случаев над лопастями приваривают коробку для сбора грунта.
И все это — буры сделанные своими руками. Все они отличаются высокой эффективностью — работать намного легче чем покупными.



































