Разновидности террас
По степени защищенности от погодных условий террасы делятся на открытые – площадки под открытым небом, накрытые (под кровлей на опорах или навесом) и закрытые со всех сторон. Но для возможностей технической реализации и декоративного оформления на конкретном участке большее значение имеет степень связи настила террасы с грунтом:
- грунтовые;
- грунтоприлежащие или наземные;
- возвышенные или надземные;
- высокие и нависающие.
Грунтовые
Настил грунтовых террас выполняется только из минеральных или синтетических стойких материалов. Укладывается почти всегда (см. далее) на песчано-щебневую подушку или иную противопучинную засыпку в неглубоком котлованчике.
Грунтовая терраса выполняется открытой, накрытой или закрытой, см. рис. Главные ее достоинства – удобный подход и широкие возможности дизайна. Основные недостатки – дороговизна материалов, довольно большой объем земляных работ и большие теплопотери, из-за чего постройка жилой грунтовой террасы севернее субтропиков весьма проблематична.

Примеры террас на грунте
Возвышение настила грунтовой террасы над базовой поверхностью задается как правило не более 4-5 см, лишь бы сток воды был, иначе сложность и стоимость постройки лавинообразно нарастают. Для примера см. на рис. схему устройства и чертежи грунтовой возвышенной террасы:

Схема устройства и чертежи основания грунтовой возвышенной террасы
Укладка настила террасы на грунте обычного возвышения производится без бордюров для удобства подхода. В котлован глубиной до 30 см насыпается и трамбуется 10-15 см щебня и столько же песка. Песчаная подушка формируется с откосами по краям не более 2-3 градусов (1:30 – 1:20). Мощение производится с пристукиванием резиновым молотком. Мощеная поверхность посыпается мелким низкосортным строительным песком (с существенной примесью глины) и тщательно прометается. Затем проводят обрызгивание водой из распылителя, дающего широкую струю мелких брызг; по видимом высыхании мощения – повторную посыпку песком, прометание и обрызгивание. Благодаря примеси глины в песке мощение без бордюров держится крепко.
Наземные
Для постройки грунтоприлежащей террасы в котловане или просто на ровной земле формируется щебневая подушка с обычными технологическими откосами (1:5 – 1:10). На ней монтируется стойкая к коррозии обрешетка, на которую и укладывается настил с зазорами в 3-5 мм для стока воды.
Преимущество грунтоприлежащей террасы – меньший объем земляных работ и возможность настелить настил из дерева или современных специальных материалов для террас, см. далее. Недостатки – плохое проветривание под настилом и серьезные технические трудности в постройке кровли; выполнить грунтоприлежащую террасу закрытой и тем более обитаемой практически невозможно. Поэтому грунтоприлежащие террасы, отдаленные от дома, от непогоды укрываются зонтами или временными навесами, а прилегающие к дому маркизами или навесами, укрепленными на основном строении, см. рис.:

Примеры грунтоприлежащих террас
Возвышенные
Возвышенные террасы строятся чаще всего: во-первых, их конструкция технически оптимальна для данного вида сооружений. Во-вторых, возвышение на 15-40 см над базовой поверхностью не ухудшает существенно эргономику террасы, но придает ей респект. Попросту: терраса выглядит уже террасой, а не площадкой.
Основание возвышенной террасы тоже неглубокая противопучинная подушка, либо незаглубленный фундамент, но монтируется на них уже не плоская обрешетка, а объемный силовой каркас с обшивкой. Современные виды оснований террас (см. далее) на грунтах до среднепучинистых включительно позволяют обойтись вообще без земляных работ, а прочная несущая основа дает возможность построить надземную террасу любого типа как прилегающую к дому, так и удаленную от него, см. рис.:

Примеры выполнения возвышенных террас
Высокие и нависающие
Под нависающую террасу (слева на рис.) нужен участок с довольно крутым естественным уклоном и красивым видом с него. Но дело не в том, что такие участки по карману людям, делающим деньги, а не самоделки. В конце концов и цари с королями бывали выдающимися мастерами. Дело в том, что неквалифицированное вмешательство в динамику грунта на склоне и около его верхней бровки может вызвать оползень и распознать, насколько данный склон оползнеопасен по внешним признакам невозможно.

Нависающая терраса и высокие террасы-балконы
Что же касается высоких террас-балконов, в центре и справа, то их сооружение фактически реконструкция основного строения и производится по всем требованиям СНиП.
Пол на веранде
Порядок строительства, материалы, способы крепления и обработки.
Технология устройства полов своими руками:
На доски нижней обвязки устанавливаются лаги. Расстояние между соседними лагами должно составлять не более 1 м. Лаги устанавливаются перпендикулярно тому, как будет уложена половая доска.
Установка лаг к кирпичному домуУстановка лаг к деревянному дому
Крепление лаг к обвязке – важный момент, качество его выполнения определяет эксплуатационные характеристики пола. Установка лаг контролируется уровнем.
Варианты крепления лаг к обвязке
Из чего сделать полы на открытой веранде
Стоит отметить, что пользователи рекомендуют делать пол на открытой веранде под небольшим углом. Уклон позволит стекать дождевой воде. При этом, многие сходятся во мнении, что в открытых пристройках пол лучше делать из бетона.
Бетонный пол на веранде обходится дешевле, плюс, он долговечен и предполагает последующую отделку. Например, можно уложить плитку или настелить линолеум. Деревянный пол на веранде, даже покрашенный, будет со временем деформироваться. Плинтус также рекомендуется использовать пластиковый с декором под дерево.
Чем покрыть полы на закрытой веранде
Пол закрытой веранды укладывают половой доской. При этом монтаж начинается с самой удаленной от входа доски. Она крепится к лагам напрямую через доску.
Укладка и крепление половой доски
Последующие доски монтируются методом шип-паз, а крепление метиза осуществляется через паз.
Порядок укладки половой доскиСпособы крепления половой доски
Как крепить половую доску на веранде
Крепить доски пола рекомендуется саморезами. Их длина должна в два раза превышать ширину доски. Расстояние от края половой доски до стены составляет 10-15 мм. Такой зазор позволит компенсировать расширение древесины в жаркое время года.
Чем покрыть пол на веранде (открытой, закрытой)
Напольное покрытие веранды из дерева одно из самых популярных и простых в устройстве. Поэтому, актуален вопрос, чем обработать пол на веранде, чтобы продлить срок службы и сохранить эстетические свойства.
Половые доски прослужат дольше, если их дополнительно покрыть растворами, упреждающими появление грибка. В качестве финишного покрытия пола – наносят декоративный слой краски или морилки, вскрытые сверху лаком.
Новинкой среди ЛКМ является краска Dufa «Жидкий пластик», предназначенная для использования на улице (хорошо подходит для открытой веранды).
Из прозрачных покрытий уважение пользователей заслужили:
- Тиккурила Валтти (масло для дерева);
- Pinotex Terrace Oil;
- Alpina Oel Terrassen Dunkel;
- Watco Danish Oil.;
- а также эпоксидные лаки (яхт-лаки), которые предназначены для использования во влажной среде.
Выбирая, чем покрасить пол на веранде, рекомендуем ориентироваться на следующие параметры:
средство должно быть предназначено для древесины;
обладать устойчивостью к истиранию;
отличаться устойчивостью к влиянию факторов внешней среды (вода, температура, ультрафиолет).
Стоит отметить, что покрытия для пола веранды довольно дорогие, но это оправдывается сроком службы, без повторной отделки и высокими эстетическими свойствами.
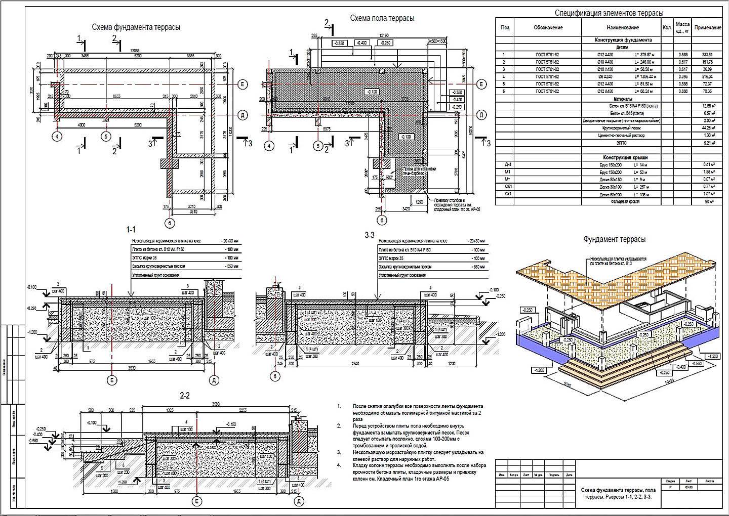
Виды фундамента
Такая постройка требует обустройства надежного основания. В облегченных вариантах веранд, террас получится обойтись и без него.
Разберем подробнее, в каких случаях делаются разные типы фундаментов.
Винтовой
Установка свай подойдет для дачных участков, дворов, расположенных вблизи водоема, на болотистых, рыхлых почвах с сильной усадкой. Это хорошее основание для домов, построенных под уклоном.
Винтовые сваи – металлические трубы с острым наконечником на конце и приваренными лопастями. Их вкручивают специальным буром на требуемую глубину (ниже уровня промерзания почвы).
Чтобы террасное помещение можно было эксплуатировать зимой, основание рекомендуется утеплять. Подробнее здесь: «Теплоизоляция свайного фундамента».
Столбчатый
Хороший вид фундамента для деревянной веранды.
Основные опоры монтируются по углам будущего помещения, дополнительные – в зависимости от размеров площадки.
В качестве столбов берут кирпич, бревно, металлический профиль. Последний тип предпочтительнее, поскольку наиболее удобен в строительстве.
Под стойки роются ямы, заполняются песчаной подушкой. Опоры фиксируются в грунте, заливаются бетонным раствором. Время застывания – 5‒7 дней. На этот период строительные работы приостанавливаются.
Ленточный
Подойдет для массивных бревенчатых, кирпичных, каменных конструкций большой площадью закрытой планировки.
Тип грунта ‒ устойчивый, скалистый. Допускается использовать на песчаной, глинистой почве при обустройстве расширенной подошвы.
Монолитный
Применяется под капитальные беседки, веранды, летние кухни или когда террасу решено оформлять в форме отдельной площадки. Он прочный, долговечный, может выдерживать высокие нагрузки.
На монолитной плите устанавливают стационарную печь, мангал. Сверху фундамента проводят укладку тротуарной плитки, декинга (террасной доски).
Минусы монолитного основания – высокая цена, большой расход материалов и трудоемкость.
Без фундамента
Легкую конструкцию получится пристроить к дому и без фундамента.
Этот вариант подходит для небольших навесов, летних конструкций из пластика, поликарбоната.
Фото: зона патио на даче
Чтобы пол террасы был выше уровня грунта, не заполнялся водой во время дождя, необходимо:
- Снять плодородный слой почвы.
- Засыпать песчаную подушку.
- По всей площади расстелить геотекстиль.
- Смонтировать лаги из бруса под небольшим уклоном от дома. Материал предварительно обрабатывают антисептиками. Для устойчивости под лаги укладывают бетонную плитку.
- Сверху лаг настелить террасную доску.
Этот порядок действий применим, если хозяева хотят пол из дерева.
Альтернатива ‒ аккуратно уложенная тротуарная, бетонная плитка. Хорошее украшение – напольная мозаика.
Половое основание каркасной пристройки
На ленточный фундамент можно класть любое половое покрытие, как деревянное, так и бетонное. На столбчатом основании возможно обустройство исключительно деревянных полов.
Бетонный пол
После обустройства ленточного основания по периметру каркасной постройки внутри на глубину 30-35 см необходимо выбрать грунт. На дно котлована засыпается песок, щебенка либо керамзит и осуществляется тщательная трамбовка. Толщина подушки – 20 см.
Далее на песчано-щебневую подушку укладывается армированная решетка и выполняется полноценная бетонная стяжка. Поверхность делается под строительный уровень идеально ровной.
В качестве финишного покрытия можно использовать деревянные полы, ламинат или керамическую плитку.
Деревянный пол
Для монтажа деревянного пола на столбчатый фундамент предварительно монтируются массивные балки, выполняется гидроизоляция. Брусья связывают с фундаментом с помощью анкеров или прочих надежных крепежей.
Сверху на основные балки набиваются лаги, осуществляется их утепление и кладется финишное напольное покрытие.
Все элементы конструкции из дерева обязательно обрабатываются защитными пропитками.
Выбор материала
Из чего лучше сделать террасу? Вариантов много.
- Древесина. Деревянное сооружение отличается прочностью, надежностью, обеспечивает максимальный комфорт и домашнюю атмосферу. Строительство выйдет наиболее экономичным и наименее трудозатратным.
- Камень, бетон, кирпич. Работать с этими материалами сложнее, стоят они дороже и не позволяют реализовать часть дизайнерских задумок.
- Металл. Из стали или чугуна делают красивые перила и стойки конструкции. Но этот вариант затратный с финансовой точки зрения. Также самостоятельно работать с металлом под силу не каждому — нужно как минимум владеть сварочным аппаратом. Кроме того, отдых на такой террасе будет менее комфортным, так как на солнце сталь сильно нагревается.
- Древесно-полимерный композит, или ДПК. Это сырье — самое дешевое и простое в обработке. Благодаря покрытию из ПВХ материал не нужно защищать пропитками от гниения, как элементы деревянного строения. Внешне ДПК привлекательный — напоминает текстуру натуральной древесины.
При возведении террасы необязательно применять новые материалы, сделать площадку для отдыха можно и из остатков после строительства дома. Главное, чтобы доски, бетонные блоки для фундамента и другие элементы не имели дефектов и были обработаны специальными пропитками, защищающими от влаги, перепадов температуры. Только в таком случае конструкция получится крепкой и долговечной.
Что потребуется для пристройки
Для того, чтобы построить современную веранду на даче, потребуется учесть сразу несколько вещей, влияющих на дальнейшую работу:
План проекта. Разработкой плана строительства лучше заняться ещё в начале зимы – минимум за полгода до начала строительства.
В разработке плана нужно учесть все мелочи: где располагается сооружение, как расположена дверь, с какой стороны пристроена к дому, из чего сделана конструкция и т.д.
Местоположение. Пристроить закрытую веранду к дому где попало не получится. Пристройка должна располагаться так, чтобы закрывать собой входную дверь в дом.
Территория. Веранда занимает достаточное количество квадратных метров. Будет очень хорошо учесть это ещё при проектировании дома – в этом случае можно сразу же предусмотреть доступные размеры веранды.
Узаконивание проекта. Если строительство планируется на территории города или иного муниципального образования, то проект пристройки необходимо предоставить в архитектурный отдел для одобрения плана строительства государством.
Важно понимать, что на утверждение проекта может уйти достаточно много времени – до 2х месяцев. Поэтому представлять документы лучше зимой – задолго до начала строительного сезона.
После того, как всё учтено, проект подготовлен и утверждён, можно уже начинать строительство пристройки.
Выбор типа фундамента
Зачастую перед мастером стоит нелегкая задача: как пристроить террасу к дому. Первый этап данной задачи заключается в выборе оптимального фундамента. Тип заливки зависит от размеров и предполагаемой нагрузки на основание. На сегодняшний день известно несколько разновидностей цементной заливки:
- Винтовой фундамент. Идеально подойдет строительства летней террасы на заболоченных или слишком рыхлых почвах. Также можно использовать подобную конструкцию для пристройки веранды к дому, расположенному под уклоном.
- Для деревянного настила можно выбрать столбчатый фундамент. Опорные точки размещают по углам будущей площадки. Для очень больших террас следует заливать дополнительные балки.
- Ленточная заливка применяется для возведения массивных террас, построенных из камня, кирпича, закрытых утепленных строений.
Во всех случаях следует помнить, что для площадки применяется отдельный фундамент, который имеет точки крепления к основанию жилого дома. Таким образом, образуется надежное сцепление двух площадок между собой.
Выбор материалов для веранды
Пошаговая инструкция как сделать веранду начинается с выбора материалов для будущей пристройке, обратите внимание на те, которые использовались при строительстве дачного домика или коттеджа. Чаще всего это пеноблок или кирпич, в некоторых случаях постройки выполнены из деревянного бруса

Проще всего делать веранду из деревянного бруса, если Ваш дом из этого же материала, Вам повезло. Существуют каркасные схемы из готовых элементов, в нашей статье мы будем рассматривать деревянную веранду своими руками.

Для окончательной отделки крышки применяются разные кровельные материалы. Как и с самой пристройкой, ориентироваться следует на кровлю дома. Можно использовать битумную черепицу, шифер, поликарбонат, натуральную черепицу и другие материалы.

Основные виды террас
Перед началом строительства следует внимательно ознакомиться с основными видами террас, пристроенных к дому. В зависимости от особенностей конструкции, различают следующие виды террас:
- Открытого типа. Для данной модели предусмотрено наличие лишь настила, навеса и перил. Используется подобное строение в регионах с тропическим климатом или исключительно в летнее время года. Данная летняя площадка имеет минимальный уровень сложности для самостоятельного строительства.
- Закрытого типа. В дополнение к классическому обустройству присоединяются боковые стенки. Они могут быть выполнены в виде кирпичной или каменной кладки, в виде стеклянных или пластиковых панелей, которые надежно защищают обитателей дома от зимних холодов.
- Полуоткрытого типа. Универсальная модель летней террасы, боковые ограждения которой выполняют деревянные решетки, неполная кирпичная или каменная стенка. В качестве альтернативного варианта используются плотные шторы, складные перегородки и ширмы, панорамные окна.
Наконец, это может быть полностью открытая площадка, укрытая искусственным газоном или засаженная натуральной декоративной травой.
На подобных участках довольно часто обустраивают детские игровые площадки, летнюю обеденную зону.
Как пристроить веранду?
Поскольку в основном веранды возводятся после строительства дома, конструкция является пристроенной. В этом случае используется фундамент, не связанный с общим основанием, то же самое относится и к стропильной системе. Веранда или терраса вдоль дома могут быть возведены в любой период эксплуатации дома. Монтаж отдельного фундамента характеризуется следующими преимуществами:
- Сооружение имеет гораздо меньший вес по сравнению с домом. В результате на основание будут возлагаться разные нагрузки, а под воздействием сил морозного пучения может произойти его деформация.
- Под пристройку можно выбрать облегченный фундамент.
Если планируется эксплуатация помещения в зимний период, то веранда из стеклопакетов будет отличным вариантом
Веранда в зависимости от возраста дома может быть пристроена как вплотную к строению, так и в виде плавающего соединения посредством шипа и паза. Независимо от выбранной формы и типа пристройки обязательным условием является наличие входа из дома, а не только с улицы.
Обустройство дачной веранды
Были времена, когда веранда использовалась для хранения различного хлама, но все это осталось в прошлом. Сегодня такое место позволяет насладиться природой, отдохнуть. Наибольшей популярностью пользуются веранды из дерева. И этому можно не удивляться, ведь дерево не только привлекает своей красотой, но и является экологически чистым строительным материалом. Дизайн дачной веранды может быть выполнен практически в любом стиле, главное, чтобы он сочетался с интерьером дома.
В основном отделка на веранде своими руками производится на полу и одной из прилегающих стен, поскольку остальная конструкция выполнена из деревянного каркаса и больших окон. Отделка пола должна выполняться из материалов высокого качества, способных противостоять воздействию внешней среды. В зависимости от того, какой предполагается дизайн летней пристройки, в качестве материала может использоваться доска из тика либо кедра, также популярен искусственный камень. Если веранда утепленная, то предпочтительнее использовать ламинат, линолеум или другие материалы для напольного покрытия, которые применяются в доме.
Дизайн веранды необходимо выдержать в едином стиле, поэтому стены должны соответствовать отделке пола. Распространенными материалами для стен являются деревянные панели либо искусственный камень, что смотрится довольно привлекательно. Потолку не нужно стремиться придать особой изощренности. Очень красиво будут смотреться выступающие внутрь пристройки деревянные балки. Подшивать потолок также не стоит, поскольку такая отделка будет скрадывать немалую часть помещения. Лучший вариант, если конструкция повторяет внутренний свод кровли. Чтобы сделать интерьер веранды с особым колоритом, в конструкцию можно вписать камин, отделанный натуральным камнем. На самом деле проекты веранд или террас могут быть различными: все зависит только от предпочтений и возможностей владельца дома.
Как разделяют террасы и веранды?
Веранды могут быть закрытыми и открытыми. Для экономии времени стоит планировать конструкцию перед строительством основного здания. Если фундамент будет цельным, значительно снизится уровень риска появления трещин на стенах дополнительной постройки. Пристройка документально должна быть оформлена вместе с планом, как часть частного дома или дачи. Если решаете создать веранду после постройки основного здания, будьте готовы заплатить дополнительные денежные средства на оформления всего пакета документов. Внешняя отделка должна быть максимально похожей или выполненной в одном стиле со всем домом.

Веранда, это отличное место для отдыха и чаепития

Очень красиво будет выглядеть люстра в дизайне веранды

В такой веранде можно отдыхать в любое время года
Дизайн террасы делят на три типа.
Открытый тип – территория без фундамента, которая дополнительно может быть закрыта навесом. |
|
Закрытый вариант – оборудуется отдельным от основной постройки фундаментом, устанавливаются стены. |
|
Универсальная терраса – один из самых популярных вариантов, благодаря дополнительному разъему стеклопакетов и дверей, что позволяет легко превратить открытый вариант на закрытый. | Оборудуется механизмом, позволяющим складывать крыши и стены. Строится на фундаменте, легко внедрить систему отопления |
Можете выбрать любой тип исходя из своих желаний и возможностей. Лучше позаботиться об этом еще до строительства дома, создание отдельной постройки выйдет намного дороже. К тому же, вы потеряете время на оформление дополнительного пакета документов.

Украсить веранду можно живыми цветами

В такой веранде отдыхать будет одно удовольствие
Фундамент
Оптимальный вариант фундамента: ленточный или столбчатый. Но часто применяется более лёгкий тип возведения — применение под фундамент бордюрного камня. Тогда план действий следующий:
- Обозначение границ будущей площадки. Для используются колышки из дерева, а по границе натянуть бечёвку.
- Установка в углах временных кирпичных опор приблизительно 35-45 см в высоту.
- Укладка поверх опор лаг под углом 2° к зданию (способствует эффективному водоотводу).
- Натяжка бечёвки поверх лаг, затем снятие лаг.
- Замена кирпичных опор бетонными столбами.
- Выкапывание промеж столбов траншей под камень и последующая заливка бетоном.
- Установка бордюрных камней.
- После застывания смеси, пространство между частями фундамента засыпается керамзитом. Это повышает теплоизоляции.
Если здание новое, или только планируется к строительству, то фундаменты дома и пристройки жестко соединять противопоказано.
Остекленные террасы
Стекло для оформления террас используют те, кому важно найти компромисс между открытой площадкой и глухими стенами. Плюсов у такого обустройства немало:
- в помещении много света и простора;
- прекрасный панорамный вид «из окна»;
- отличные визуальные характеристики внутри и снаружи.
Минус же только один: парниковый эффект, который неизбежен при таком виде отделки. Особенно, если и крышу террасы сделать из оргстекла или поликарбоната. Поэтому оптимальным вариантом будет комбинированный вариант — из стекла и глухих блоков. А добавить «живого» воздуха помогут раздвижные двери и складные перегородки или даже стены. Последние вообще могут подниматься вверх наподобие гаражных ворот.
Третий этап: монтаж стенового каркаса и его облицовка карбонатом
Для сборки каркаса используются брусья с габаритами 100 на 100 мм. Эти элементы формируют нижнюю обвязку, которая крепится к основанию террасы. На следующем этапе производится установка опорных стоек в углах площадки. Оставшиеся деревянные детали монтируются с шагом от 60 см до 1 м. Далее, выполняется сборка верхней обвязки.
После сборки обвязки можно провести обшивку каркаса. Для этих целей применяются различные материалы. Наиболее подходящим является поликарбонат, который отличается небольшой стоимостью, привлекательным внешним видом и имеет маленький вес. Терраса, закрытая этим материалом, смотрится стильно и современно.
Обратите внимание! Толщина карбоната подбирается в зависимости от назначения террасы. Например, если площадка будет эксплуатироваться только в летний период, то тогда можно приобрести листы с толщиной 8-10 мм
Оптимальный вариант для круглогодичной террасы – 14-16 мм.
Крепление поликарбоната
Вначале листы нарезаются с помощью лобзика на необходимые части. Далее, их потребуется закрепить. Фиксация выполняется с помощью специальных винтов и шайб. Температурные промежутки в этом случае составляют 4 мм. Под шайбы рекомендуется устанавливать резиновые прокладки, снижающие напряжение, оказываемое на крепежный элемент.




































