Сарай и его варианты постройки
Проектирование сарая. Каждая стройка начинается с создания проекта. Начертите на бумаге, какой сарай вам нужен, а именно размер сарая, где расположен вход, наличие окна.
После того как проект готов, начинаем подсчет материала.
Пример расчётов. Периметр сарая равен 15 м ( длина первой стены + длина второй стены + длина третьей стены + длина четвертой стены), высота 2,2 м. предполагается входная дверь 2 м х 1 м, и окно, для проветривания 0,8 м х 0,8 м. Крыша односкатная, угол наклона сарая около 20, кровельный материал волновой шифер.
Для того, чтоб сарай был устойчивым и его не перекосило от времени и погодных условий, шаг между брусьями каркаса берем 1,2 м.
Ход строительства сарая пошагово
Перед строительством сарая необходимо приобрести инструменты и материалы:
- пилу;
- рубанок;
- дрель;
- шуруповерт;
- молоток;
- строительный уровень;
- гвозди;
- саморезы;
- провода;
- строительный степлер;
- рубанок;
- маленькое пластиковое окно;
- деревянную дверь с фурнитурой.
Основа сарая (сарай на столбах без фундамента)
После завершения подготовительных работ приступают к возведению постройки.
На первом этапе выполняют следующие действия:

- Очищают территорию, на которой будет строиться хозблок. С площадки удаляют мусор, грязь, ненужные растения. Бугры необходимо выровнять, ямы — закопать.
- Размечают местность, выбирая наиболее удобное место расположения постройки. На этом этапе стоит решить, на что поставить сарай без фундамента. Рекомендуется выбирать стандартный вариант строения на столбах.
- Вкапывают в грунт 4 угловых бруска будущего каркаса. Каждый из них заглубляют на 20-30 см., что обеспечивает конструкции устойчивость. Для повышения прочности столбы бетонируют.
- Оставляют раствор до полного затвердевания. Приступать к дальнейшем работам можно не ранее, чем через сутки.
- Засыпают площадку щебнем для уплотнения грунта. Формируют песчаную подушку. Так сарай приобретет прочную опору.
- Начинают сборку каркаса. Устанавливают брус обвязки пола. Монтируют горизонтальные балки, заканчивая работы под потолком. Такую же решетку формируют на полу. Для соединения вертикального бруса с горизонтальным используют длинные гвозди или саморезы. При сборке каркаса не забывают делать оконные проемы.
- На короткой стене оставляют место для установки двери.
Устройство кровли
Крыша сарая должна быть стропильной. Плоские конструкции для хозяйственных построек не подходят.
Кровлю обустраивают так:
- Строят каркас из прочных досок или тонких брусьев. Делают горизонтальную обвязку верхних концов стоек.
- Устанавливают стропила. Расстояние между досками должно быть таким, чтобы можно было прокладывать теплоизоляционный материал.
- Устанавливают обрешетку. Для сборки можно применять отходы пиломатериалов.
- Формируют верхнее покрытие. Для защиты крыши от влаги укладывают слой рубероида. Для кровли подойдет любая черепица или шифер. Более экономным вариантом считается профнастил. Его укладывают внахлест, чтобы вода не попадала на стропила и утеплитель. Под профлисты можно уложить дополнительный гидроизоляционный слой.

Отделка сарая
Работы выполняют в 3 этапа:
- Отделывают наружные стороны постройки. Для облицовки подойдет материал — сайдинг, пластиковые панели, доску или вагонку. При использовании пластиковых материалов дополнительная отделка не выполняется. Деревянную обшивку обрабатывают антисептическим составом, окрашивают или лакируют.
- Устанавливают окна и двери. Можно купить готовые элементы или собрать их своими руками. Подойдут как пластиковые, так и деревянные окна.
- Отделывают внутренние стороны сарая. Такие работы выполняют в том случае, если постройка должна долго удерживать тепло. Между укрепляющими продольными и поперечными балками укладывают утеплитель. Можно применять минеральную вату или пенополиуретан. Для облицовки подойдут гипсокартонные или древесностружечные плиты, вагонка, доска.
- Приступают к установке пола. На деревянные элементы каркаса укладывают гидроизоляционный материал. После этого монтируют утеплитель. Желательно укладывать 2 слоя, чтобы пол не промерзал зимой. Утеплитель повторно защищают рубероидом, после чего покрывают досками. Дополнительная гидроизоляция препятствует попаданию влаги на утепляющий материал.
- Протягивают кабели от уличной разводки. Их закрепляют на стенах и потолке, подводят к осветительным приборам. На стене монтируют розетку и выключатель. Первая используется для питания обогревательных устройств в зимнее время.
При необходимости делают перегородки из ОСБ, устанавливают их в нужных местах. Плиты разрезают пилой, закрепляют на полу и стенах гвоздями.
Из чего строить?
Какие стройматериалы лучше всего подойдут для сарая? Достаточно прочные, стойкие, недорогие и легкие в работе? Прежде всего – доски. Сарай можно построить из одних только досок, см. далее. Дешевы необрезные доски, причем строение из них может выглядеть вполне аккуратным и даже элегантным в духе рустикального дизайна, поз. 1 на рис.

Сараи из различных материалов
Видео: очистка горбыля от коры
Каркасный сарай, поз. 2 на рис. выше, наиболее распространен, т.к. технология малого каркасного строительства хорошо освоена частными застройщиками. Однако собирать каркас из бруса, как для бытовки или других хотя бы временно обитаемых строений (к ним, между прочим, относятся и дачные туалет с душем), поз. А на рис. справа, не обязательно. Точнее, исходя из требований прочности, обязательно для сараев передвижных. А если строение ставится сразу на своем месте, то и каркас можно собрать из одних лишь досок, поз. Б. Это намного удешевит постройку, если в дело пойдут доски необрезные и б/у.

Каркасы сараев из бруса и досок
Иногда дачный сарай эстетики ради обшивают ОСП, поз. 3, или фанерой. Эти материалы на открытом воздухе повержены расслоению, поэтому перед покраской сарай с обшивкой из ОСП нужно как следует прогрунтовать, а фанерный дважды обработать водно-полимерной эмульсией.
Капитальные сараи, особенно скотные, строят чаще всего из пеноблоков, поз. 4. Меньшая их прочность по сравнению с кирпичом в данном случае роли не играет, но сарай из пеноблоков выходит дешевле, проще в работе, зимой теплее, а летом прохладнее. Если вы выберете себе такой, учтите:
- Сарай из пеноблоков можно строить на столбчатом фундаменте по деревянному венцу, как, напр., баню.
- На цементно-песчаном растворе кладут не более 3-х нижних рядов, а выше нужно переходить на специальный клей для газобетона. Строение легкое, и слабо нагруженные по вертикали верхние цементные швы могут порваться под боковым давлением ветра.
- Выложив стены на треть по высоте, работу прерывают до отвердевания кладочного раствора, чтобы кладка не поплыла по швам. Такой же перерыв делают на 2/3 кладки.
В продаже также имеются комплекты деталей для быстросборных пластиковых сараев, поз. 5. Однако цены, мягко говоря, вызывают недоумение, во-первых. Во-вторых, живность в таких сараях отчего-то не приживается. Возможно, по тем же причинам, каковы бы они ни были, по которым и люди не живут в пластиковых домах.
Схема, чертёж сарая на даче
На основании выше описанных характеристик рисуем чертеж или эскиз будущего здания, с указанием основных размеров.

Чертеж сарая
Поскольку сарай для дачи довольно простое сооружение, достаточно изобразить его с трех сторон (видов):
• вид спереди, со стороны входа – архитекторы называют это изображение «главный фасад»;• вид сбоку, или «боковой фасад»;• наконец, вид сверху – план здания.
План здания изображается таким образом, как будто сделать сарай предполагается без крыши. На плане указывают расположение стоек каркаса, деталей обвязки и обшивки.

Схема сарая для инструментов с размерами
Все рисунки снабжаются размерными линиями и значениями размеров в миллиметрах (так принято в строительных чертежах) с точностью до 10 мм. А значит, последняя цифра каждого размера будет «0» (рис. 1).
Выбираем место и делаем фундамент – надежное основание для постройки
Подбор места для строительства хозяйственного сооружения – достаточно важный этап запланированного мероприятия. Специалисты советуют размещать сарай так, чтобы он не портил вид двора (участка). Оптимальное место – за домом
Важно, кроме того, обеспечить свободный проход к возводимому строению, так как вы будете складировать в нем разнообразные предметы (в том числе и достаточно крупногабаритные). Еще один совет
Постарайтесь найти участок под хозпостройку на некоторой (хотя бы небольшой) возвышенности. Тогда можно не опасаться, что во время паводка или сильных осадков сарай, возведенный своими руками, зальет водой.

Определившись с местом, приступаем к строительству надежного основания под сооружение. Фундамент допускается делать любым – плитным, свайным, ленточным. Рациональнее всего обустраивать последний из указанных. Ленточный фундамент отличается высоким уровнем прочности и надежности. Он поднимает пол строения над поверхностью грунта на 0,4–0,5 м, легко заливается без привлечения специалистов. Поэтапное обустройство ленточного основания выполняется так:
- При помощи тонкого шнура и колышков осуществляем разметку площадки.
- Роем 0,3-метровый по ширине котлован глубиной 0,4–0,5 м.
- Расчищаем дно траншеи, хорошо выравниваем его.
- Засыпаем в ров песок, сбрызгиваем его водой, трамбуем.
- На слой песка укладываем пленку из полиэтилена.
- Монтируем по краю подготовленного рва деревянную опалубку. Ее высота рассчитывается с учетом размеров цоколя сарая. Стены опалубочной конструкции укрепляем распорками. Если этого не сделать, при заливке бетона есть вероятность, что доски разъедутся по сторонам.
- Выполняем вязку арматурного каркаса (металлические прутки) проволокой и устанавливаем его в котловане.
- Заливаем бетон. Рекомендуем использовать сухую смесь (продается в сухом виде в строймагазинах, разбавляется водой) или готовый раствор (заказ бетоновоза). Можно смешать состав и самостоятельно, используя песок, щебень и цемент 250-ой марки, если вы знаете все пропорции.
Заливка бетона должна производиться в сухую погоду. Желательно весь объем раствора подавать за один сеанс. Если заливать фундамент частями, с ощутимыми перерывами в работе, в основании гарантированно появятся воздушные пустоты. Они существенно снизят прочность и надежность готовой конструкции.
Бетонная смесь застывает в течение 20–28 дней. По прошествии этого времени можно убирать опалубочную конструкцию и продолжать работы. Укладываем на бетонное основание гидроизоляцию (не нужно тратиться на новомодные влагозащитники, используем обычный рубероид). На нее монтируем 2–3 ряда кирпичной кладки по стандартной методике, предполагающей перевязку отдельных изделий. Далее по периметру конструкции выполняем закладку брусков (древесина) через каждые 140–150 см. Эти элементы нужны для монтажа на них нижней обвязки.
Проекты
Для того, чтобы изготовить хозблок для дачи, необязательно самому разрабатывать проект. Достаточно зайти на сайты изготовителей и подобрать нужный вариант необходимой компоновки и функционального назначения. Там даже будут приведены основные размеры и чертежи — останется только доработать деталировку и узлы крепления. Но и это несложно, учитывая простоту конструкции.
Вот для примера наиболее популярные варианты:
- Эконом класс.
- С навесом.
- С дровником.
- С туалетом.
- С душем.
- С туалетом и душем.
- С верандой.
- Утепленный с комнатой отдыха.
Выбор места и планировка участка
Постройку можно сблокировать с уже имеющимися баней или гаражом либо установить отдельно. Основные требования при выборе места на участке:
- сооружение должно быть удобно расположено по отношению к дому и другим хозпостройкам;
- не занимать площадь под отведенные садово-огородные насаждения;
- гармонично вписываться в комплекс окружающих надворных построек;
- соответствовать пожарным и санитарным нормам безопасности.
Первые 3 пункта хозяин может разрешить самостоятельно. А вот по требованиям градостроительства и санитарных норм есть определенные ограничения. Если в сарае предполагается содержать птицу или мелких домашних животных, необходимо отступить:
- от соседнего владения не менее 4 м;
- от жилого дома на расстояние 15 м;
- от колодца для питьевой воды 30-50 м.
Место должно быть достаточно возвышенным, чтобы не затапливаться талыми или дождевыми водами. Для защиты участка от ветров можно расположить сарай с наветренной стороны.
Сооружение не должно мешать соседям и закрывать доступ солнечного света на их участок. В противном случае они могут подать жалобу, и суд заставит снести постройку или перенести в другое место.
Где на участке разместить сарай
Строительство подобных построек обычно выполняется своими руками и планировкой обычно пренебрегают.
Тем не менее, стоит учесть рекомендации норматива СНиП 2.07.01-89 по расстояниям до других объектов на участке:
- не следует сильно приближать его к соседскому жилому дому, минимальное расстояние до него должно составлять 6 м;
- если в сарае планируется содержание птицы, скота, то это расстояние увеличивается до 15м;
- по согласованию с соседями допускается объединение хозпостроек в один комплекс с соседскими;
Подготовка площадки под сарай
Выбрав место, куда будет помещен сарай, с помощью колышков выполняют разметку осей здания. В нашем случае это линии, которые образуются наружными гранями стен.
Разметка фундамента под сарай
Обычно, новое здание помещают в створе одной из уже существующих построек так, что плоскости стен старого и нового здания располагаются на одной линии.
На всей площади участка под сарай на даче плюс еще по 40 см наружу с каждой из четырех сторон, снимают 15-20 см плодородного слоя. Забивают сваи и выполняют отсыпку щебнем или гравием. После чего, укладывают тротуарную плитку, которая будет служить полом.
Выполняя подобные работы самостоятельно, помните, что щебень нужно хорошо укатать, а затем поверх него уложить выравнивающую подушку из смеси сухого песка и цемента с пропорции 5:1 (т.наз. «сухая смесь») толщиной как минимум 3-5 см, и лишь потом класть плитку.
Этой же смесью просыпают швы уложенной плитки. Через некоторое время, впитав влагу из почвы и воздуха, цементная составляющая сухой смеси затвердеет, придав сборному полу прочность монолита.
Осаживая плитку без песчаной подушки (или, если её толщина недостаточна), вы скорее сломаете деталь, чем опустите хоть на пару миллиметров.
Крайний ряд плитки укладываем уже за пределами будущих стен, с небольшим уклоном наружу. Этот ряд будет выполнять функции отмостки.
Мы рассматриваем, как сделать сарай для садового инвентаря и инструментов. Для хранения слесарных и строительных инструментов, а уж тем более инструментов с электроприводом он не подходит.
Основание
Временный сарай без фундамента ставят на щебневую подушку толщиной 25-40 см. ее насыпают вровень с поверхностью грунта, сняв гумус. Однако сараю длительного пользования все-таки нужен фундамент достаточно надежный для данного типа строения, недорогой и не очень трудоемкий.
На плитных фундаментах сараи возводят редко: для обычного они слишком трудоемки и дороги, а в коровнике или свинарнике на плите сложно устроить стойла и навозную яму. Большие скотные сараи из кирпича возводят на ленточном или столбчато-ленточном фундаменте, но для мелкого частного хозяйства и это, пожалуй, излишне.

Столбчатый фундамент сарая
Оптимальный фундамент сарая – столбчатый, см. рис. Технология его заложения (так называется процесс постройки фундамента) описана ранее; мы здесь разберем, облегчить и упростить эту работу для сарая. Пошагово обустройство столбчатого фундамента под сарай выглядит так:
- Для бетона закупаем у дорожников (не строителей!) песчано-гравийную смесь (ПГС), она намного дешевле строительного песка и гравия по отдельности. Бетон на ПГС под жилое здание непригоден, но для сарая пойдет;
- Также закупаем цемент М400 из расчета 1 мешок на 9 мешков ПГС. Бетон получится М150, для сарая хватит;
- На участке делаем обноску из 1-го (да, именно одного) шнура на колышках;
- Проверяем ее как обычно, сравнением диагоналей и промерами сторон;
- По шланговому гидроуровню находим наивысший угол и ставим отступ шнура от поверхности грунта в 10 см;
- Тем же уровнем выставляем обноску в горизонталь;
- В наинизшем углу бурим 200-мм ручным буром скважину на расчетное заглубление плюс 15-25 см на песчано-щебневую подушку;
- На штанге бура делаем отметку;
- Бурим остальные скважины до совпадения отметки на буре со шнуром;
- Засыпаем в скважины равные слои песка и щебня с трамбовкой каждого слоя. Использовать здесь ПГС нельзя, т.к. заливаемый раствор должен немного проникнуть в щебенку;
- Сворачиваем из 2-х слоев рубероида гильзы свай диаметром 150 мм. Скрепляем их 2-мм мягкой проволокой. Чтобы гильзы не распёрло при заливке, надо 3-4 пояса обвязки на 1 м их длины;
- Ставим гильзы в скважины. Подкладывая камешки, выставляем вертикально;
- Обрезаем гильзы, ножницами по металлу или большими портновскими, вровень со шнуром;
- Готовим арматурные каркасы: по 3 (10-12)-мм рифленых прута на столб, перевязанных той же 2-мм проволокой. Шаг связки по вертикали – 200-250 мм. Расстояние от внутреннего края гильз и их верха обычное, 30-50 мм;
- Ставим каркасы в гильзы, выставляем, чтобы не касались стен;
- Замешиваем бетон на ПГС до густоты сметаны;
- Заливаем столбы послойно, слоями в 15-20 см, с перерывом 10-25 мин. между слоями. Это называется заливка с гидроуплотнением. На практике слои заливают по порядку, начиная с одного и того же столба;
- Перед заливкой последнего (предпоследнего) слоя ставим в столбы анкеры;
- На 3-и сутки производим обратную засыпку грунта с трамбовкой. Следите, чтобы не сбить столбы с вертикали!
- На 7-е сутки (бетон набрал 50% прочности) можно продолжать строительство. На 20-е сутки, при температуре 15-25 градусов, бетон наберет 75% прочности и строение на нем считается пригодным к эксплуатации.
Что сначала?
Семья, о которой шла речь, до того никаких стратегических способностей в себе не обнаруживала. Действительно, не умея вникать в мелочи, невозможно охватить проблему глобально и добиться успеха. Незатейливый сарайчик может дать тут бесценный опыт, если сразу воспринять его как первоначало и первооснову будущего благополучия. В общем, хотя сам по себе сарай несложен, к постройке его нужно отнестись со всей ответственностью. Особенно – к подготовке строительства. Поэтапно подготовка к постройке сарая происходит следующим образом:
Ориентируемся на месте, разговариваем с соседями. Цель – найти наилучшее место для сарая: чтобы был не очень далеко, но и не торчал перед глазами и укладывался в санитарные нормы по расстояниям до источников водоснабжения и др. подверженных загрязнению объектов (жилые дома, посадки сельхозкультур, особенно корнеплодов);
Вдруг по п. 1 ясности нет, строим сарай либо передвижной, либо времянку из дешевого бросового материала. Тем не менее, сарай на даче из горбыля или досок б/у возможно построить достаточно долговечным, недорого и несложно облагородить до придания ему вполне приглядного вида, см. далее;
Если с местом под сарай определились сразу, выбираем тип верхнего строения с учетом возможности обзаведения домашними животными;
Подбираем к «коробке» крышу;
Определяем тип фундамента;
Проектируем сарай с привязкой на местности
Последнее особо важно, т.к. надзорные органы с источниками загрязнений не церемонятся;
Сводим (подбиваем) смету на строительство и оформление;
Возможно, корректируем проект, если сарай в бюджет не вписывается;
Также, возможно, рассматриваем вариант самостроя с последующим узакониванием
Если сарай заведомо укладывается в СанПиНы (Санитарные Правила и Нормы), то так выйдет дешевле и проще, чем строить изначально по проекту;
Закупаем материалы, строим.
Как быть с проектом?
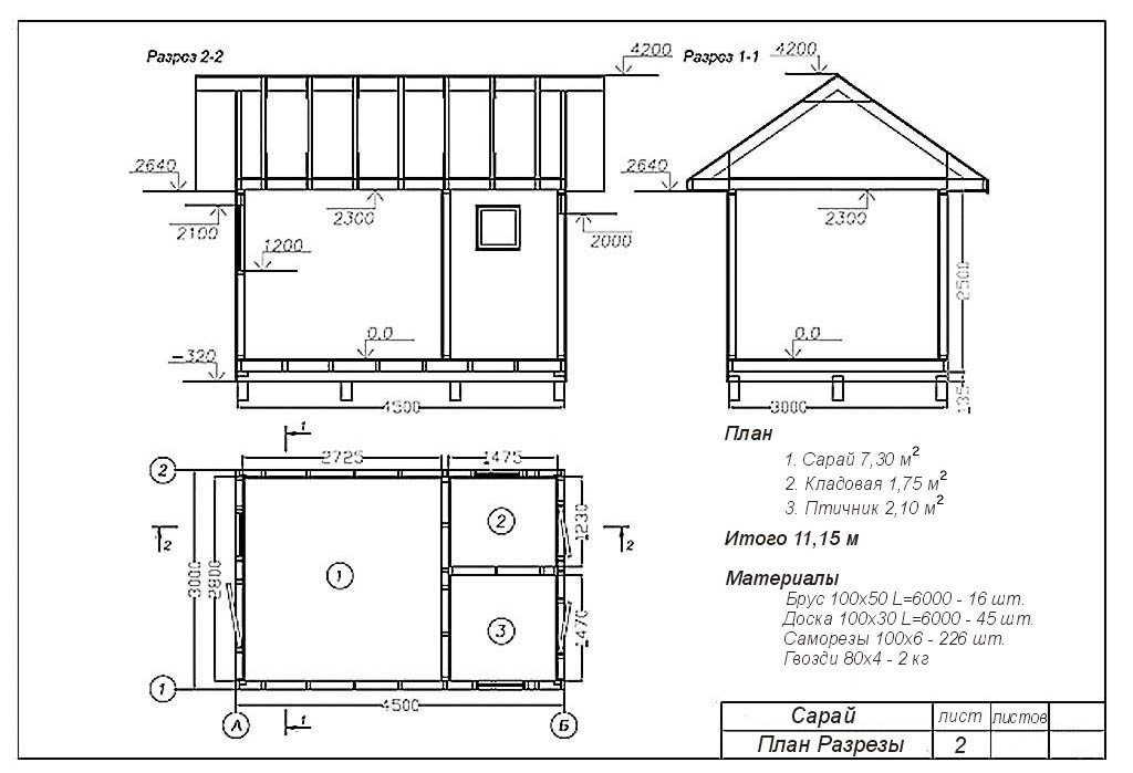
Сарай – легкое быстровозводимое не отапливаемое нежилое строение, из чего следуют важные облегчающие дело следствия. О них для строительства речь впереди, а пока нужно знать, что при оформлении/узаконивании наибольших придирок и сложностей следует ожидать по привязке на местности в соответствии с СанПиНами. Собственно проект сарая должен включать в себя листы с фасадами, план с разрезами, см. след 2 рис. и план-схему фундамента со спецификацией материалов на него, как на рис. с план-разрезами.

Лист фасадов из проекта сарая
Как правило, бесплатные проекты сараев из рунета утверждаются безо всякого и потом никто никогда не проверяет досконально, что там на самом деле построено. Похоже на проект, и ладно. Отклонения от проекта в строительстве допустимы, а в «мелкострое» для себя и без согласования можно обойтись. Но вот план-схему расположения на участке изучают очень внимательно, как и планы соседских участков и их согласия на строительство. Так что позаботьтесь собрать эти бумаги заранее, они действительны 3 года.

Лист план-разрезов из проекта сарая
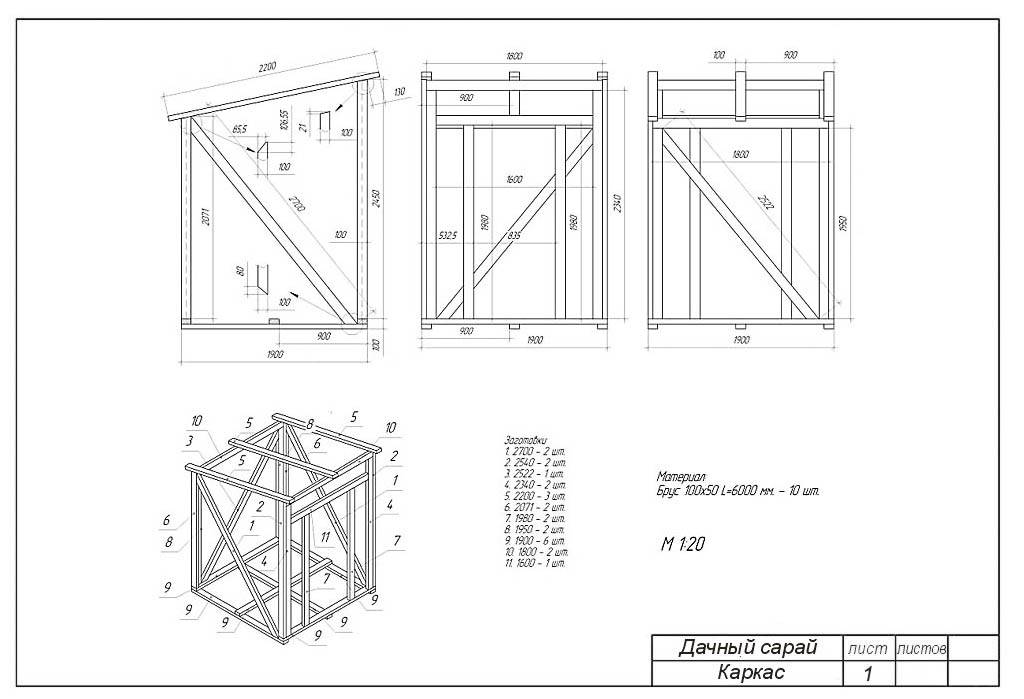
Возможно, въедливый чинуша потребует еще лист с конструкцией каркаса, т.к. нежилое-то оно нежилое, но люди туда заходят. На такой случай для образца – чертежи на рис. Кстати, это совсем неплохая сарайка для 6-соточной дачи. На крайний случай там и спать можно, улегшись по диагонали.

Каркас мини-сарая для маленького участка
О временных сараях
Добротный деревянный сарай без фундамента весит до тонны; с односкатной крышей и если строить аккуратно, но не по-купечески, можно уложиться в полтонны. Передвигать его на катках по слегам, см. рис., подваживая ломом, можно вдвоем. Чтобы поднять и поставить на основание с помощью лямок (веревок), хватит 10-12 крепких мужиков. Хотя как знать, не обойдется ли последующее угощение для этой оравы дороже аренды автокрана…

Передвижение сарая на катках
К чему это, кроме того, что спервоначала строить можно где угодно? К тому, что в таком случае проект нужен не более, чем для собачьей будки, а для нее он не нужен вовсе. Если год простоит, то потом, на фундаменте, узаконят, лишь бы в СанПиНы вписывался.
Однако тут встает вопрос уже для себя: а как на фундамент ставить? Надо бы на анкеры посадить, но не разбирать же постройку, чтобы сквозь венец их протолкнуть? Есть способ, о нем см. далее.
Из чего строить?
Какие стройматериалы лучше всего подойдут для сарая? Достаточно прочные, стойкие, недорогие и легкие в работе? Прежде всего – доски. Сарай можно построить из одних только досок, см. далее. Дешевы необрезные доски, причем строение из них может выглядеть вполне аккуратным и даже элегантным в духе рустикального дизайна, поз. 1 на рис.

Сараи из различных материалов
Видео: очистка горбыля от коры
Каркасный сарай, поз. 2 на рис. выше, наиболее распространен, т.к. технология малого каркасного строительства хорошо освоена частными застройщиками. Однако собирать каркас из бруса, как для бытовки или других хотя бы временно обитаемых строений (к ним, между прочим, относятся и дачные туалет с душем), поз. А на рис. справа, не обязательно. Точнее, исходя из требований прочности, обязательно для сараев передвижных. А если строение ставится сразу на своем месте, то и каркас можно собрать из одних лишь досок, поз. Б. Это намного удешевит постройку, если в дело пойдут доски необрезные и б/у.

Каркасы сараев из бруса и досок
Иногда дачный сарай эстетики ради обшивают ОСП, поз. 3, или фанерой. Эти материалы на открытом воздухе повержены расслоению, поэтому перед покраской сарай с обшивкой из ОСП нужно как следует прогрунтовать, а фанерный дважды обработать водно-полимерной эмульсией.
Капитальные сараи, особенно скотные, строят чаще всего из пеноблоков, поз. 4. Меньшая их прочность по сравнению с кирпичом в данном случае роли не играет, но сарай из пеноблоков выходит дешевле, проще в работе, зимой теплее, а летом прохладнее. Если вы выберете себе такой, учтите:
- Сарай из пеноблоков можно строить на столбчатом фундаменте по деревянному венцу, как, напр., баню.
- На цементно-песчаном растворе кладут не более 3-х нижних рядов, а выше нужно переходить на специальный клей для газобетона. Строение легкое, и слабо нагруженные по вертикали верхние цементные швы могут порваться под боковым давлением ветра.
- Выложив стены на треть по высоте, работу прерывают до отвердевания кладочного раствора, чтобы кладка не поплыла по швам. Такой же перерыв делают на 2/3 кладки.
В продаже также имеются комплекты деталей для быстросборных пластиковых сараев, поз. 5. Однако цены, мягко говоря, вызывают недоумение, во-первых. Во-вторых, живность в таких сараях отчего-то не приживается. Возможно, по тем же причинам, каковы бы они ни были, по которым и люди не живут в пластиковых домах.
О сараях для живности
Сараи для продуктивных домашних животных требуют отдельного описания, причем своего для каждого вида. Коровник со свинарником и курятником совмещают разве что территориально на одном хоздворе. С точки зрения, так сказать, общего сараестроения, нужно учесть прежде всего, что помет животных химически агрессивен, выделяет много аммиака (особенно птичий и свиной), а его консистенция и скорость высыхания существенно различны. В любом случае навоз нужно удалять по мере поступления и складировать, т.к. он любой, кроме свиного – ценное удобрение.

Первое, что отсюда следует – сарай для живности должен быть хорошо проветриваем, расположен по СанПиНам и узаконен. Далее, увесистая хрюшка или молодой бычок, почесавшись об угол, создадут в конструкции немалые нагрузки. Молочная корова в полтонны еще не великан среди своих, и приходятся они на 4 копыта, опорная площадь которых много меньше 1 кв. м. Т.е., о человеческих по СНиПам 250 кг/кв. м нужно забыть и брать в расчет реальную нагрузку.

Деревянный каркас сарая для скота

Наконец, козы, как известно, не прочь поглодать деревяшек. Чтобы сарай совсем съели, такого не замечено. Но обязательные для деревянных строений бактерицидная и водоотталкивающая пропитки им на пользу не пойдут вплоть до падежа.

Итак, сарай для кур конструктивно может быть обычным, но с хорошей вентиляцией и химически стойким; для свиней – тоже деревянным, но на брусовом усиленном каркасе, напр., как на рис; для коз деревянный сарай нежелателен, а для коров, кроме того он должен быть и теплым, т.к. мерзнущая буренка легко заболевает и хорошего удоя не даст; в целом, сарай для скотины предпочтительно строить из пеноблоков на ленточном фундаменте. Проще может быть овчарня, но овцеводство в мелких частных хозяйствах в мире не развито, т.к. рентабельно только в достаточно больших масштабах.
Выбор места и планировка участка
Постройку можно сблокировать с уже имеющимися баней или гаражом либо установить отдельно. Основные требования при выборе места на участке:
- сооружение должно быть удобно расположено по отношению к дому и другим хозпостройкам;
- не занимать площадь под отведенные садово-огородные насаждения;
- гармонично вписываться в комплекс окружающих надворных построек;
- соответствовать пожарным и санитарным нормам безопасности.
Первые 3 пункта хозяин может разрешить самостоятельно. А вот по требованиям градостроительства и санитарных норм есть определенные ограничения. Если в сарае предполагается содержать птицу или мелких домашних животных, необходимо отступить:
- от соседнего владения не менее 4 м;
- от жилого дома на расстояние 15 м;
- от колодца для питьевой воды 30-50 м.
Место должно быть достаточно возвышенным, чтобы не затапливаться талыми или дождевыми водами. Для защиты участка от ветров можно расположить сарай с наветренной стороны.
Сооружение не должно мешать соседям и закрывать доступ солнечного света на их участок. В противном случае они могут подать жалобу, и суд заставит снести постройку или перенести в другое место.
Выбор материала для строительства
Прежде чем начать строить сарай 3х6, стоит определиться с расходными материалами. Для этих целей обычно используются пиломатериалы, такие как:
- плиты ОСБ. Отличаются высокими техническими характеристиками, удобством в работе, выгодной ценой. Данный материал как нельзя лучше подходит для каркасного строительства, а сами плиты применяются для обшивки стен, и легко монтируются к деревянному каркасу. ОСБ прекрасно справляется с негативными факторами окружающей среды, выносит большие механические нагрузки и применяется не только при обшивке стен, но и при кровельных работах;
- доска. Это более дорогой материал, который обладает высокими качествами. Главное, древесину обработать антисептиками и различными пропитками, повышающими ее долговечность и стойкость к негативным факторам;
- сип – панели. Данный материал отличается высокой себестоимостью, и его целесообразно использовать только в том случае, если достаточное количество панелей для сооружения небольшой хозпостройки, осталось после возведения дома на участке. Сип — панели отличаются высокими тепло – и звукоизоляционными качествами, стойкостью к негативным факторам, долговечностью. Каркасный сарай 3х6 из сип — панелей подойдет не только для хранения различного инвентаря, но и для обустройства мастерской. В таком помещении будет комфортно работать даже зимой.
Сарай из пластика
На рынке хозблоков и хозпостроек существуют уже готовые объекты, сделанные из прочного и легковесного пластика. Чаще всего такие конструкции требуется дополнять деревянной внутренней обшивкой – вагонкой, листами ОСП или фанерой. Между пластиком и обшивкой прокладывают утеплитель. Это позволит сохранить тепло и не даст сырости проникнуть в помещение.
Устанавливают пластиковые сараи без капитального фундамента. Достаточно выровнять площадку и просто на нем поставить маленький домик сарая. Сборка несложная. Производится из готовых модулей – на металлическом каркасе морозоустойчивый пластик. Все необходимые крепления входят в комплектацию. Это наилучшее решение для эстетики внешнего вида построек на участке. Материал практичен. Не требует особого ухода.
Компактный сарай из плстика. Стильный дизайнИсточник afonya-spb.ru
Чертежи и схемы сараев
Сарай — капитальное сооружение, поэтому чертеж является базовой основой для как расчета материалов, так и для дальнейшего строительства
При составлении важно учитывать кроме своих пожеланий размеры блоков, листов, мерных изделий, чтобы при возведении оставалось как можно меньше обрезков и отходов
Чертеж нужно составить в нескольких проекциях, желательно всех 4 фасадов, если есть какие-либо различия. Указывают размеры здания по осям, высоту, габариты проемы, толщину стен. Обозначают раскладку основных конструктивных элементов и другие технические подробности. Можно воспользоваться схемой из интернета, а потом детально ее проработать.
Планировка может быть совсем простой. Если под одной крышей будут помещения различного назначения, их нужно разграничить перегородками. Желательно устроить хотя бы одно окно
Особенно это важно для выращивания животных, так как солнечный свет благоприятно влияет на их поведение
Примеры чертежей:


Постройка хозблока из дерева по каркасной технологии
Для постройки хозблока для дачи из дерева не требуется серьезных затрат на возведение фундамента. Фундамент для каркасного хозяйственного блока применяется свайный или столбчатый. Свайный фундамент состоит из металлических или асбетоцементных труб, заглубленных в землю на глубину 1-1,5 м. Трубы устанавливаются по периметру постройки с шагом 2 – 3м. Столбчатый фундамент изготавливается из строительных блоков или кирпича. Для этого в грунте делают углубление глубиной 20 см. Углубления засыпают песком, на песок укладывают блоки и скрепляют раствором.
Рис.11. Для деревянного хозблока для дачи не требуется специального фундамента. В качестве фундамента могут применяться строительные блоки, установленные на песчаную подушку и скрепленные между собой раствором.
Следующий этап — это сборка пола (основания) хозблока. Пол изготавливают из бруса сечением 100х100 мм или 150х150 мм. Брус будет основой для стен и всего пола. На фундамент укладывают рубероид для защиты древесины от влаги, на него укладываются брусья и соединяются в пол дерева. К продольным брусьям с шагом 60 – 100 см крепят лаги пола. Для лаг применяют доску 40х100 или 50 х100 мм.
Рис.12. Основание деревянного хозблока изготавливают из бруса сечением 100х100 или 150х150 мм. Брусья будут служить основой для стен. Между длинными брусьями устанавливают лаги. Они будут основой для настила пола.
На этом этапе пол может быть утеплен, если планируется делать теплый хозблок, и зашит половой доской или фанерой.
Дале на готовое основание хозблока устанавливаются вертикальные опоры из бруса 80х80 или 100х100 мм и укладываются стропила. Для стропил используют доску 40х120 мм. На стропила крепят обрешетку из доски 25х120 мм. Все элементы хозблока скрепляют с помощью саморезов и металлических строительных уголков.
Рис.13. На собранное основание устанавливают вертикальные опоры из бруса 100х100 мм с шагом 06 – 1 м. Для придания конструкции устойчивости вертикальные брусья скрепляют диагональными перемычками. Все элементы конструкции соединяются саморезами и строительными уголками. Основа крыши стропила из доски 40х100 мм. Для обрешетки используется доска 25х100мм. Покрытие крыши может быть любым.
Заключительный этап — это зашивка и утепление собранного каркаса. Изнутри хозблок обычно зашивают фанерой или ОСП толщиной 10 -16 мм. Снаружи хозяйственный блок может быть облицован вагонкой, доской или сайдингом.




































